Listing Address:
51 NW Carolina Street, West Melbourne, FL 32904
Price: $1,841
MLS # 1036324
Property Type: Commercial
This property is Active. Please contact us for similar properties.
Property Description:
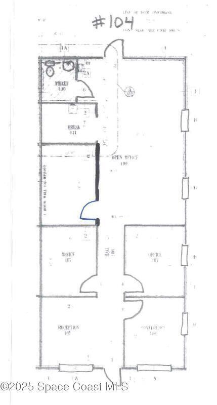
This 1,425 SF suite includes a kitchen, restroom, reception area, and four private offices. The landlord covers dumpster service. Tenant is responsible for all other utilities. Please reach out to Christian@SouthTrend.com or 321-505-7606 (cell).
Property Listing Details for 51 NW Carolina Street, West Melbourne, FL 32904
Total SqFt.
5,720
Property Sub-Type
Office
Sale / Lease
Lease
Lot Acres
0.52
County
Brevard
Tax Amount
$9,657 (2024)
D. Basile Real Estate, LLC lists and sells Real Estate and Luxury homes in Melbourne Beach, Merritt Island, Cocoa Beach, Lansing Island, Tortoise Island, Barefoot Bay, Cape Canaveral, Cocoa, Grant Valkaria, Indialantic, Indian Harbour Beach, Malabar, Melbourne, Palm Bay, Rockledge, Satellite Beach, Titusville, West Melbourne and surrounding areas in Brevard.
This listing is courtesy of SouthTrend Realty. Property Listing Data contained within the D Basile Real Estate website is the property of Brevard MLS and is provided for consumers looking to purchase real estate. Any other use is prohibited. We are not responsible for errors and omissions on this web site. All information contained herein should be deemed reliable but not guaranteed, all representations are approximate, and individual verification is recommended.
Quick MLS Search
Choose the Area, City, then Type of the property you're looking for

Share us on your network!