Listing Address:
511 Moray Place, Melbourne Beach, FL 32951
Price: $799,000
MLS # 1041970
Property Type: Residential
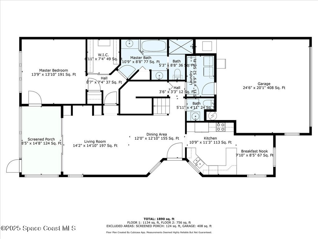
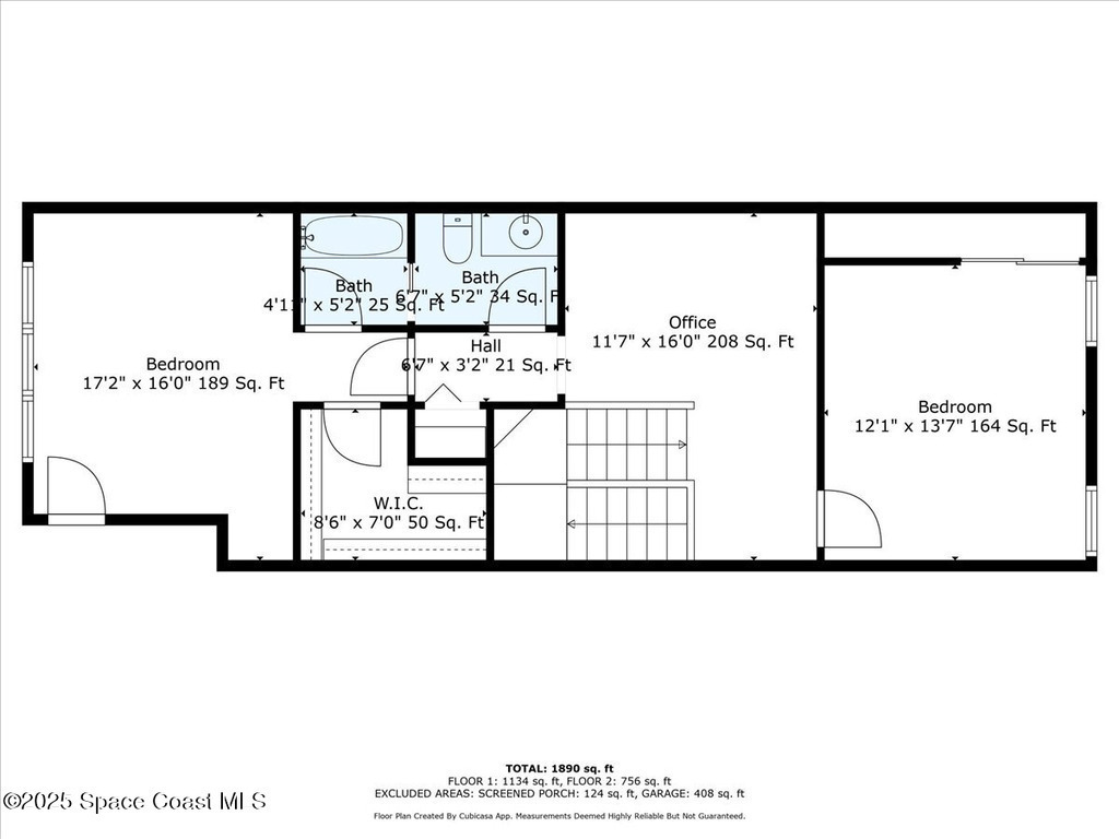
2,071 Total SqFt.
Beds: 3
2,071 Living SqFt.
Baths: 3.00 ½ Baths: 1
Year Built: 2005
This property is Active. Please contact us for similar properties.
Property Description:
This charming townhouse offers stunning river views, a navigable canal, and direct river access for motorboats. Enjoy the convenience of a private dock with a lift. This 3-bedroom, 2.5-bath home features a first-floor master suite and spacious two-story living. Take in breathtaking sunset views from both upper and lower balconies. The kitchen boasts granite countertops, wood cabinetry, and a cozy nook area. Thoughtful upgrades include plantation shutters, Hunter ceiling fans, crown molding, Rosewood flooring, and full storm shutters. Located in a sought-after gated community, residents enjoy private beach access, a pool with cabana, tennis courts, and a fishing pier. Don't miss this exceptional waterfront lifestyle opportunity!
Property Listing Details for 511 Moray Place, Melbourne Beach, FL 32951
Exterior Features
Balcony , Boat Lift , Boat Slip , Storm Shutters
Interior Features
Breakfast Nook , Built-in Features , Ceiling Fan(s) , Eat-in Kitchen , Open Floorplan , Primary Bathroom -Tub with Separate Shower , Primary Downstairs , Skylight(s) , Split Bedrooms , Vaulted Ceiling(s) , Walk-In Closet(s)
Equipment / Appliances
Dishwasher , Electric Range , Microwave , Refrigerator
Pool
Pool Description
Utilities
Cable Connected , Electricity Connected , Sewer Connected , Water Connected
Additional Rooms
None
Waterfront
Yes
Parking
Garage , Garage Door Opener , On Street , RV Access/Parking
Split Floorplan
HOA
HOA Dues
0.00
Construction
Block , Frame , Stucco
Floor
Carpet , Tile , Vinyl
Exterior Finish
Roof Type
Tile
Fireplace
0
County
Brevard
Gated Community
Furnishings
Negotiable
Home Warranty
Tax Year
2024
Tax Amount
6305.41
55+ Community
Subdivision
Listing Status
Active
Property Status
Home Style
Home View
Protected Preserve , Water
Street
511 Moray Place, Melbourne Beach, 32951
Zip Code
D. Basile Real Estate, LLC lists and sells Real Estate and Luxury homes in Melbourne Beach, Merritt Island, Cocoa Beach, Lansing Island, Tortoise Island, Barefoot Bay, Cape Canaveral, Cocoa, Grant Valkaria, Indialantic, Indian Harbour Beach, Malabar, Melbourne, Palm Bay, Rockledge, Satellite Beach, Titusville, West Melbourne and surrounding areas in Brevard.
This listing is courtesy of One Sotheby's International. Property Listing Data contained within the D Basile Real Estate website is the property of Brevard MLS and is provided for consumers looking to purchase real estate. Any other use is prohibited. We are not responsible for errors and omissions on this web site. All information contained herein should be deemed reliable but not guaranteed, all representations are approximate, and individual verification is recommended.
Quick MLS Search
Choose the Area, City, then Type of the property you're looking for

Share us on your network!