Listing Address:
1801 Penn Street, Melbourne, FL 32901
Price: $15,204
MLS # 1048504
Property Type: Commercial
This property is Active. Please contact us for similar properties.
Property Description:
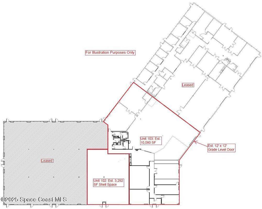
Unit 103 is est. 5,580 SF Office/Storage/Training Rooms + 4,500 SF Warehouse = 10,080 SF total. Interior is 100% HVAC & Fire Sprinklered. Compressed air lines to remain. Warehouse has concrete flooring and est. 14' drop ceiling throughout. There is one 12 x 12' +/- grade level door. Total of 108 common parking spaces with potential for additional parking to be constructed (call for details). Property is located in the heart of Melbourne approximately halfway between Nasa Boulevard and Hibiscus Boulevard. Easily accessible via nearby Interstate 95, US1 and US 192. Close proximity to the Melbourne International Airport, L3Harris, Northrop Grumman, and the other high tech, engineering and R&D employers in the area. Make this the future home for your business today!
Property Listing Details for 1801 Penn Street, Melbourne, FL 32901
Subdivision
Total SqFt.
36,188
Property Sub-Type
Industrial
Sale / Lease
Lease
Lot Acres
3.92
County
Brevard
Tax Amount
$0 (2023)
D. Basile Real Estate, LLC lists and sells Real Estate and Luxury homes in Melbourne Beach, Merritt Island, Cocoa Beach, Lansing Island, Tortoise Island, Barefoot Bay, Cape Canaveral, Cocoa, Grant Valkaria, Indialantic, Indian Harbour Beach, Malabar, Melbourne, Palm Bay, Rockledge, Satellite Beach, Titusville, West Melbourne and surrounding areas in Brevard.
This listing is courtesy of The Ullian Realty Corporation. Property Listing Data contained within the D Basile Real Estate website is the property of Brevard MLS and is provided for consumers looking to purchase real estate. Any other use is prohibited. We are not responsible for errors and omissions on this web site. All information contained herein should be deemed reliable but not guaranteed, all representations are approximate, and individual verification is recommended.
Quick MLS Search
Choose the Area, City, then Type of the property you're looking for

Share us on your network!