Listing Address:
2075 Highway A1A , Indian Harbour Beach, FL 32937
Price: $1,000,000
MLS # 1052697
Property Type: Residential
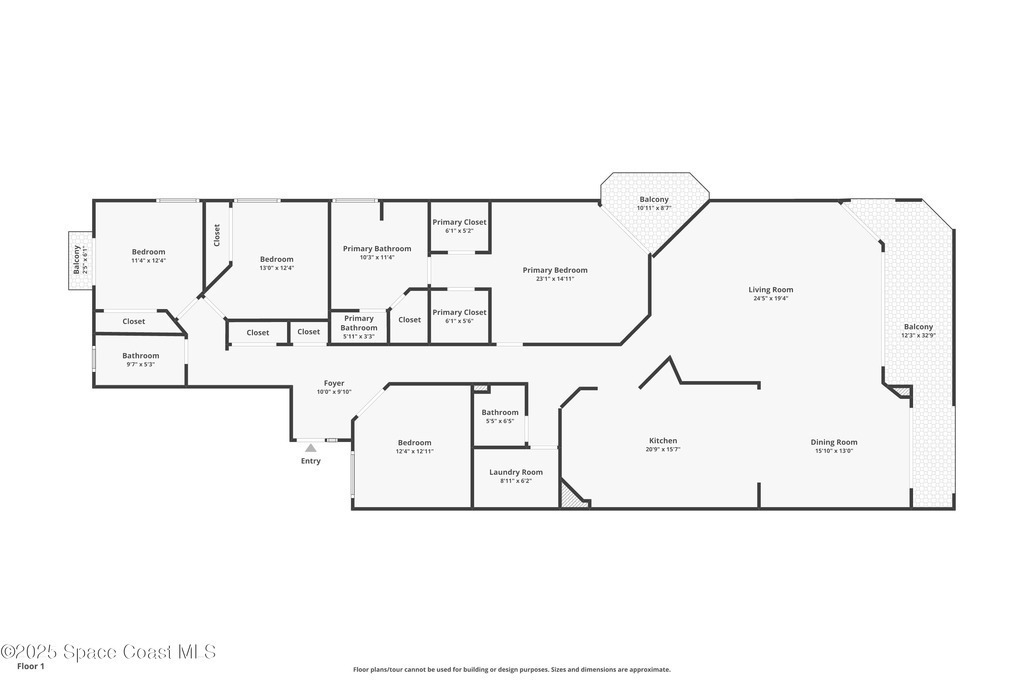
2,578 Total SqFt.
Beds: 3
2,578 Living SqFt.
Baths: 3.00 ½ Baths: 1
Year Built: 2004
This property is Active Under Contract. Please contact us for similar properties.
Property Description:
Wrapped in glass and framed by endless ocean views, this corner-unit condo delivers everything coastal living should be. A huge wraparound balcony connects the living room, dining room & primary suite, blurring the line between indoors and out. Inside, the vibe is effortless--wood-look floors anchor the open layout, while the kitchen stuns with granite counters, custom cabinetry, stainless appliances & a built-in wine cooler. Three bedrooms + flex space, 2.5 baths, and a rare 2-car garage offer space without compromise. Set within Somerset, a direct-oceanfront community with a newly resurfaced pool & spa, fitness room, secure lobby, and private beach access, all just minutes from local dining, shopping & shoreline bike rides. Sunrises pour into every corner of the home, and the rhythm of the waves becomes your daily soundtrack. This is beachfront living with function, flair & freedom.
Property Listing Details for 2075 Highway A1A , Indian Harbour Beach, FL 32937
Exterior Features
Balcony , Storm Shutters
Interior Features
Breakfast Bar , Built-in Features , Ceiling Fan(s) , Entrance Foyer , Kitchen Island , Open Floorplan , Primary Bathroom - Shower No Tub , Split Bedrooms , Walk-In Closet(s)
Equipment / Appliances
Dishwasher , Disposal , Dryer , Electric Cooktop , Electric Oven , Electric Water Heater , Freezer , Ice Maker , Microwave , Refrigerator , Washer , Wine Cooler
Pool
Pool Description
Utilities
Cable Available , Electricity Connected , Sewer Connected , Water Connected
Additional Rooms
None
Waterfront
Yes
Water Type
Parking
Attached , Garage , Underground
Split Floorplan
HOA
HOA Dues
0.00
Construction
Concrete
Floor
Carpet , Tile , Wood
Exterior Finish
Roof Type
Fireplace
0
County
Brevard
Gated Community
Furnishings
Unfurnished
Home Warranty
Tax Year
2023
Tax Amount
7598.46
55+ Community
Subdivision
Listing Status
Active Under Contract
Property Status
Home Style
Home View
Beach , Ocean , Water
Street
2075 Highway A1A , Indian Harbour Beach, 32937
Zip Code
D. Basile Real Estate, LLC lists and sells Real Estate and Luxury homes in Melbourne Beach, Merritt Island, Cocoa Beach, Lansing Island, Tortoise Island, Barefoot Bay, Cape Canaveral, Cocoa, Grant Valkaria, Indialantic, Indian Harbour Beach, Malabar, Melbourne, Palm Bay, Rockledge, Satellite Beach, Titusville, West Melbourne and surrounding areas in Brevard.
This listing is courtesy of Compass Florida , LLC. Property Listing Data contained within the D Basile Real Estate website is the property of Brevard MLS and is provided for consumers looking to purchase real estate. Any other use is prohibited. We are not responsible for errors and omissions on this web site. All information contained herein should be deemed reliable but not guaranteed, all representations are approximate, and individual verification is recommended.
Quick MLS Search
Choose the Area, City, then Type of the property you're looking for

Share us on your network!