Listing Address:
1811 Riverview Drive, Melbourne, FL 32901
Price: $1,950,000
MLS # 1054075
Property Type: Commercial
This property is Active. Please contact us for similar properties.
Property Description:
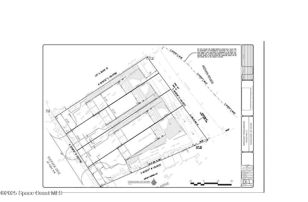
A rare 165' direct riverfront development opportunity in historic downtown Melbourne. This 0.66-acre (approx. 28,750 sq ft) parcel offers 165' of unobstructed Indian River frontage with 170' depth, panoramic views of the causeway and barrier island, and a lot elevation of 20.33 ft NAVD. With city-approved site plans for 4 luxury townhomes, a 6.0 FAR, completed aquatic and habitat surveys, and C-1 zoning, the site is primed for high-end residential or mixed-use development. Survey, plans, and environmental study are approved and included. Located at the center of Melbourne's ongoing revitalization, this is a once-in-a-generation chance to anchor a flagship project on the Space Coast waterfront. The owner has already paved the way--now it's your turn to make it iconic.
Property Listing Details for 1811 Riverview Drive, Melbourne, FL 32901
Subdivision
Total SqFt.
2,264
Property Sub-Type
Unimproved Land
Sale / Lease
Sale
Lot Acres
0.66
County
Brevard
Tax Amount
$8,650 (2025)
D. Basile Real Estate, LLC lists and sells Real Estate and Luxury homes in Melbourne Beach, Merritt Island, Cocoa Beach, Lansing Island, Tortoise Island, Barefoot Bay, Cape Canaveral, Cocoa, Grant Valkaria, Indialantic, Indian Harbour Beach, Malabar, Melbourne, Palm Bay, Rockledge, Satellite Beach, Titusville, West Melbourne and surrounding areas in Brevard.
This listing is courtesy of One Sotheby's International. Property Listing Data contained within the D Basile Real Estate website is the property of Brevard MLS and is provided for consumers looking to purchase real estate. Any other use is prohibited. We are not responsible for errors and omissions on this web site. All information contained herein should be deemed reliable but not guaranteed, all representations are approximate, and individual verification is recommended.
Quick MLS Search
Choose the Area, City, then Type of the property you're looking for

Share us on your network!