Listing Address:
1507 Emory Lane, Cocoa, FL 32922
Price: $319,000
MLS # 1056130
Property Type: Residential
1,700 Total SqFt.
Beds: 4
1,700 Living SqFt.
Baths: 2.00
Year Built: 1959
This property is Active. Please contact us for similar properties.
Property Description:
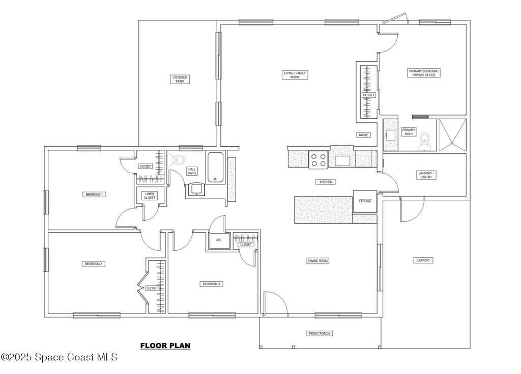
SELLER SAID SELL and bring ALL offers! Discover your own Old Florida hidden gem! This beautifully renovated 4-bedroom, 2-bath home offers modern comfort just minutes from the beach and Historic Cocoa Village. Enjoy a bright, open layout with new waterproof flooring, designer lighting, and a fully updated kitchen featuring granite countertops, sleek cabinetry, and stainless-steel appliances. Major updates include a new roof, A/C, tankless water heater, new windows, and updated plumbing--no cast iron pipes! The spacious master suite with private entrance adds flexibility for guests, multi-generational living, or a home office. Tucked away in a quiet, established neighborhood, this move-in-ready home blends coastal convenience with classic Florida charm.
Property Listing Details for 1507 Emory Lane, Cocoa, FL 32922
Exterior Features
Interior Features
Breakfast Bar , Built-in Features , Ceiling Fan(s) , In-Law Floorplan , Open Floorplan , Pantry , Split Bedrooms
Equipment / Appliances
Dishwasher , Electric Oven , Microwave , Refrigerator , Tankless Water Heater
Pool
Pool Description
Utilities
Cable Available , Electricity Connected , Sewer Connected , Water Connected
Additional Rooms
Bedroom 1 , Bedroom 2 , Bedroom 3 , Dining Room , Kitchen , Laundry , Living Room , Primary Bedroom
Waterfront
No
Parking
Attached Carport , Carport
Split Floorplan
HOA
HOA Dues
0.00
Construction
Block
Floor
Laminate
Exterior Finish
Roof Type
Shingle
Fireplace
0
County
Brevard
Gated Community
Furnishings
Unfurnished
Home Warranty
Tax Year
2023
Tax Amount
2412.02
55+ Community
Subdivision
Listing Status
Active
Property Status
Home Style
Ranch
Home View
Street
1507 Emory Lane, Cocoa, 32922
Zip Code
D. Basile Real Estate, LLC lists and sells Real Estate and Luxury homes in Melbourne Beach, Merritt Island, Cocoa Beach, Lansing Island, Tortoise Island, Barefoot Bay, Cape Canaveral, Cocoa, Grant Valkaria, Indialantic, Indian Harbour Beach, Malabar, Melbourne, Palm Bay, Rockledge, Satellite Beach, Titusville, West Melbourne and surrounding areas in Brevard.
This listing is courtesy of Denovo Realty. Property Listing Data contained within the D Basile Real Estate website is the property of Brevard MLS and is provided for consumers looking to purchase real estate. Any other use is prohibited. We are not responsible for errors and omissions on this web site. All information contained herein should be deemed reliable but not guaranteed, all representations are approximate, and individual verification is recommended.
Quick MLS Search
Choose the Area, City, then Type of the property you're looking for

Share us on your network!