Listing Address:
1625 Hortana Drive, Merritt Island, FL 32952
Price: $440,000
MLS # 1058115
Property Type: Residential
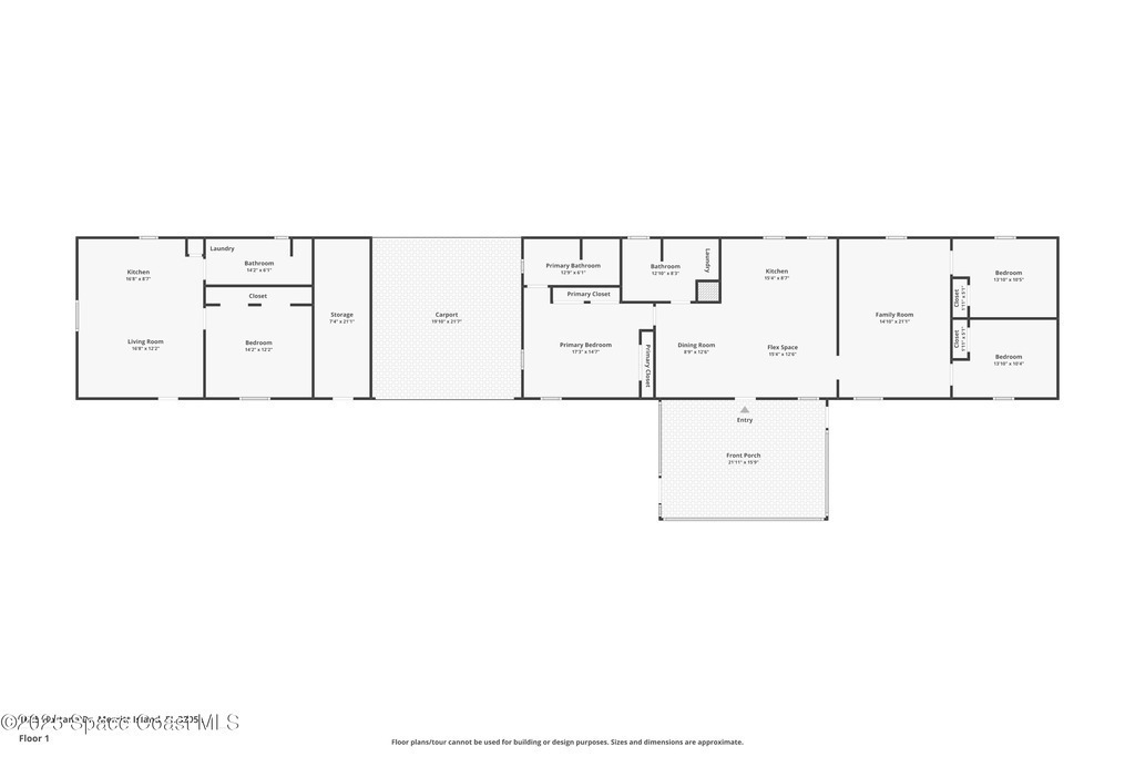
2,484 Total SqFt.
Beds: 4
2,484 Living SqFt.
Baths: 3.00
Year Built: 1960
This property is Active. Please contact us for similar properties.
Property Description:
Set on over a third of an acre in Merritt Island with no HOA, this gated property offers both versatility and comfort. The main residence features 3 bedrooms and 2 baths, highlighted by a brand-new roof and a completely refreshed kitchen with new cabinetry and counters that bring a crisp, modern feel. Just beyond, a detached 1-bedroom, 1-bath cottage expands the property's appeal, whether for guests, extended family, or rental potential. The electric gate opens to ample parking, including dedicated RV space, while the property's size allows room to spread out without sacrificing privacy. Adding to its value, sewer service is already planned and covered by grant funding, eliminating future cost concerns. With a location that balances convenience and freedom from HOA restrictions, this home provides an uncommon opportunity to enjoy space, updates, and flexibility in one of Merritt Island's most desirable settings.
Property Listing Details for 1625 Hortana Drive, Merritt Island, FL 32952
Exterior Features
Interior Features
Breakfast Bar , Ceiling Fan(s) , Eat-in Kitchen , Guest Suite , Kitchen Island , Primary Bathroom - Tub with Shower , Primary Downstairs , Split Bedrooms , Vaulted Ceiling(s)
Equipment / Appliances
Dishwasher , Dryer , Electric Cooktop , Electric Oven , Electric Water Heater , Freezer , Refrigerator , Washer
Pool
Pool Description
Utilities
Cable Available , Electricity Connected , Natural Gas Available , Water Connected
Additional Rooms
None
Waterfront
No
Parking
Attached , Carport , Gated
Split Floorplan
HOA
HOA Dues
0.00
Construction
Frame
Floor
Tile
Exterior Finish
Roof Type
Fireplace
0
County
Brevard
Gated Community
Furnishings
Unfurnished
Home Warranty
Tax Year
2023
Tax Amount
0.00
55+ Community
Subdivision
Listing Status
Active
Property Status
Home Style
Home View
Street
1625 Hortana Drive, Merritt Island, 32952
Zip Code
D. Basile Real Estate, LLC lists and sells Real Estate and Luxury homes in Melbourne Beach, Merritt Island, Cocoa Beach, Lansing Island, Tortoise Island, Barefoot Bay, Cape Canaveral, Cocoa, Grant Valkaria, Indialantic, Indian Harbour Beach, Malabar, Melbourne, Palm Bay, Rockledge, Satellite Beach, Titusville, West Melbourne and surrounding areas in Brevard.
This listing is courtesy of Compass Florida , LLC. Property Listing Data contained within the D Basile Real Estate website is the property of Brevard MLS and is provided for consumers looking to purchase real estate. Any other use is prohibited. We are not responsible for errors and omissions on this web site. All information contained herein should be deemed reliable but not guaranteed, all representations are approximate, and individual verification is recommended.
Quick MLS Search
Choose the Area, City, then Type of the property you're looking for

Share us on your network!