Listing Address:
4055 Archdale Street, Melbourne, FL 32940
Price: $579,990
MLS # 1058164
Property Type: Residential
1,661 Total SqFt.
Beds: 3
1,661 Living SqFt.
Baths: 2.00
Year Built: 2021
This property is Active. Please contact us for similar properties.
Property Description:
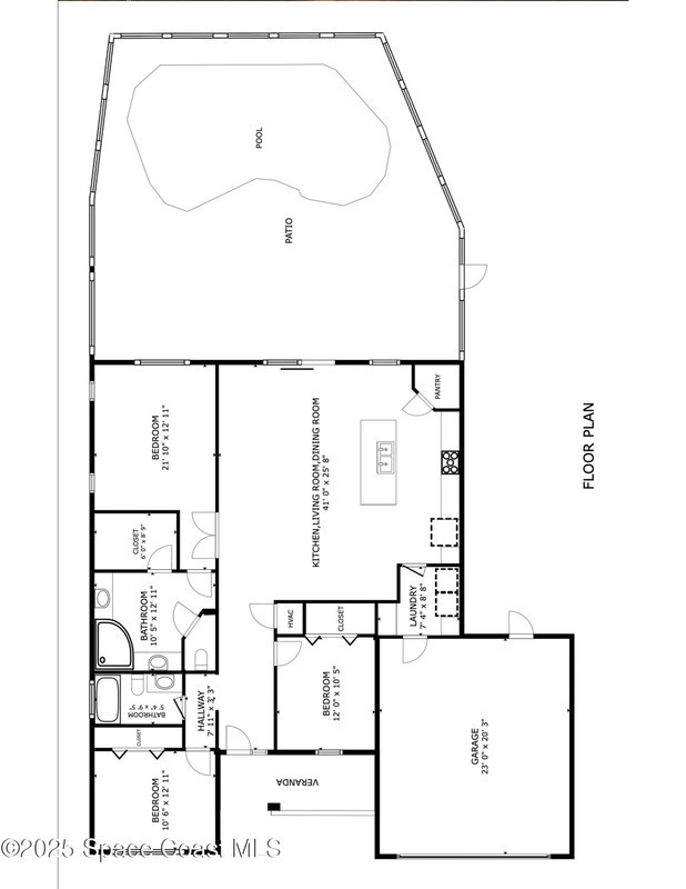
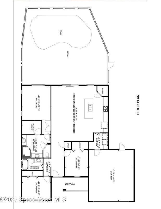
Experience elevated Florida living in this waterfront pool home in the highly sought after Trasona at Addison Village in Viera West. This modern residence features a screened in pool, expansive lanai, and fully fenced yard overlooking a tranquil pond. The paver driveway leads you into a refined interior featuring a gourmet kitchen with stone countertops, a natural gas range, premium cabinetry, abundant workspace, and a walk in corner pantry. The open layout is filled with natural light and ideal for both daily living and entertaining.The luxurious primary suite is filled with natural light from generous windows and offers tray ceilings, ample closet space, and a spa inspired bath with dual vanities that feels like a private retreat.Residents enjoy exclusive access to Addison Village amenities: clubhouse, pickleball, dog park, walking trails & more. Located near A rated schools shopping dining healthcare & major employers, this home is modern Florida family living at its finest!
Property Listing Details for 4055 Archdale Street, Melbourne, FL 32940
Exterior Features
Interior Features
Ceiling Fan(s) , Kitchen Island , Open Floorplan , Pantry , Split Bedrooms , Walk-In Closet(s)
Equipment / Appliances
Dishwasher , Disposal , Dryer , Gas Range , Microwave , Refrigerator , Washer
Pool
Pool Description
Fenced , In Ground , Screen Enclosure
Utilities
Cable Available , Cable Connected , Electricity Available , Electricity Connected , Natural Gas Available , Natural Gas Connected , Sewer Available , Sewer Connected , Water Available , Water Connected
Additional Rooms
None
Waterfront
No
Parking
Attached , Garage , Garage Door Opener
Split Floorplan
HOA
HOA Dues
0.00
Construction
Block , Concrete , Stucco
Floor
Exterior Finish
Roof Type
Shingle
D. Basile Real Estate, LLC lists and sells Real Estate and Luxury homes in Melbourne Beach, Merritt Island, Cocoa Beach, Lansing Island, Tortoise Island, Barefoot Bay, Cape Canaveral, Cocoa, Grant Valkaria, Indialantic, Indian Harbour Beach, Malabar, Melbourne, Palm Bay, Rockledge, Satellite Beach, Titusville, West Melbourne and surrounding areas in Brevard.
This listing is courtesy of Real Broker , LLC. Property Listing Data contained within the D Basile Real Estate website is the property of Brevard MLS and is provided for consumers looking to purchase real estate. Any other use is prohibited. We are not responsible for errors and omissions on this web site. All information contained herein should be deemed reliable but not guaranteed, all representations are approximate, and individual verification is recommended.
Quick MLS Search
Choose the Area, City, then Type of the property you're looking for

Share us on your network!