Listing Address:
772 Oak Park Drive, Melbourne, FL 32940
Price: $1,300,000
MLS # 1058241
Property Type: Residential
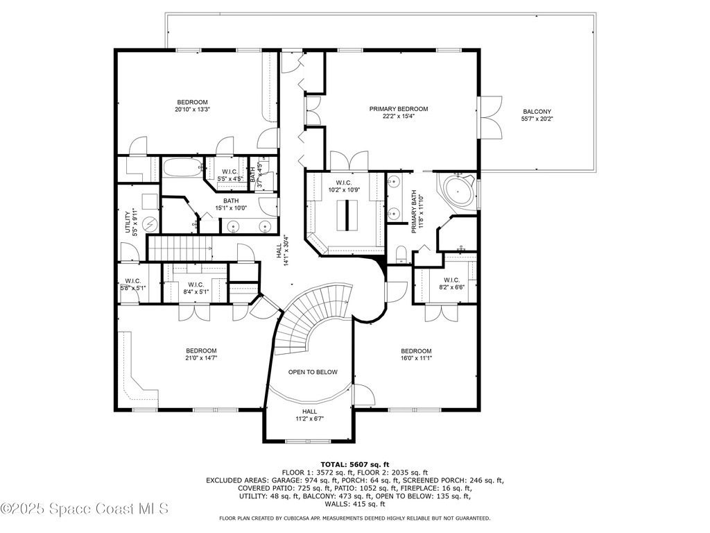
6,170 Total SqFt.
Beds: 6
6,170 Living SqFt.
Baths: 6.00 ½ Baths: 1
Year Built: 1992
This property is Active. Please contact us for similar properties.
Property Description:
Elegant Brick Estate Designed for Multi-Generational Living. Nestled in one of the area's most desirable neighborhoods, this stately brick estate home offers a rare combination of timeless elegance, modern functionality, and thoughtful design for multi-generational living. Situated on .78 acres, the property is enhanced by a beautifully brick-fenced backyard and a sparkling private salt gas heated pool, creating the perfect retreat for both entertaining and everyday life.Step inside the grand two-story foyer, where a sweeping curved staircase makes an unforgettable first impression. The home's architectural details, including arched stained glass windows, elevate its sense of grandeur. With 6 bedrooms and 5.5 baths, there is abundant space for family and guests alike.The interior boasts both formal living and dining rooms for sophisticated gatherings, as well as a private home office for today's work-from-home lifestyle. The spacious kitchen and open family areas flow
Property Listing Details for 772 Oak Park Drive, Melbourne, FL 32940
Exterior Features
Balcony , Storm Shutters
Interior Features
Breakfast Nook , Built-in Features , Ceiling Fan(s) , Guest Suite , Kitchen Island , Primary Bathroom - Tub with Shower , Primary Bathroom -Tub with Separate Shower , Walk-In Closet(s)
Equipment / Appliances
Dishwasher , Disposal , Double Oven , Dryer , Gas Cooktop , Microwave , Refrigerator , Washer
Pool
Pool Description
In Ground , Screen Enclosure
Utilities
Cable Available , Natural Gas Connected , Water Available
Additional Rooms
None
Waterfront
No
Parking
Attached , Circular Driveway , Garage Door Opener
Split Floorplan
HOA
HOA Dues
0.00
Construction
Brick , Frame , Wood Siding
Floor
Carpet , Tile
Exterior Finish
Roof Type
Shingle
Fireplace
0
County
Brevard
Gated Community
Furnishings
Unfurnished
Home Warranty
Tax Year
2024
Tax Amount
0.00
55+ Community
Subdivision
Listing Status
Active
Property Status
Home Style
Multi Generational
Home View
Street
772 Oak Park Drive, Melbourne, 32940
Zip Code
D. Basile Real Estate, LLC lists and sells Real Estate and Luxury homes in Melbourne Beach, Merritt Island, Cocoa Beach, Lansing Island, Tortoise Island, Barefoot Bay, Cape Canaveral, Cocoa, Grant Valkaria, Indialantic, Indian Harbour Beach, Malabar, Melbourne, Palm Bay, Rockledge, Satellite Beach, Titusville, West Melbourne and surrounding areas in Brevard.
This listing is courtesy of RE/MAX Elite. Property Listing Data contained within the D Basile Real Estate website is the property of Brevard MLS and is provided for consumers looking to purchase real estate. Any other use is prohibited. We are not responsible for errors and omissions on this web site. All information contained herein should be deemed reliable but not guaranteed, all representations are approximate, and individual verification is recommended.
Quick MLS Search
Choose the Area, City, then Type of the property you're looking for

Share us on your network!