Listing Address:
4460 Vancouver Avenue, Cocoa, FL 32926
Price: $465,000
MLS # 1059282
Property Type: Residential
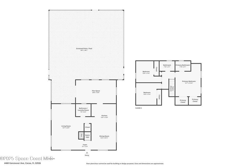
1,874 Total SqFt.
Beds: 3
1,874 Living SqFt.
Baths: 3.00 ½ Baths: 1
Year Built: 1985
This property is Active Under Contract. Please contact us for similar properties.
Property Description:
Set on over an acre in Canaveral Groves, this renovated 3-bed, 2.5-bath pool home feels like something out of a storybook, only this one comes w/ a new roof, new septic system, & an AC & water heater both under 2 years old. The wide front porch with tongue & groove ceiling & rich wood exterior welcome you in, where exposed beams, & a stone wood-burning fireplace give the home character you just can't fake. The brand-new kitchen has beautiful green shaker cabinetry, solid-surface counters, & SS appliances, opening into the dining area & a flexible bonus space w/ pool access. Upstairs, the primary suite includes dual closets & a private bath, while 2 additional bedrooms share a full hall bath. Outside, a screened pool w/ spa, covered patio, & sprawling backyard create a private retreat. A detached outbuilding adds storage or workspace flexibility. No HOA, plenty of privacy, & close to beaches, Cocoa Village, The Avenue Viera, & major highways.
Property Listing Details for 4460 Vancouver Avenue, Cocoa, FL 32926
Exterior Features
Interior Features
Built-in Features , Ceiling Fan(s) , Eat-in Kitchen , His and Hers Closets , Kitchen Island , Open Floorplan , Primary Bathroom - Shower No Tub , Walk-In Closet(s)
Equipment / Appliances
Dishwasher , Electric Range , Microwave , Refrigerator
Pool
Pool Description
In Ground , Screen Enclosure
Utilities
Electricity Connected , Sewer Not Available , Water Available
Additional Rooms
None
Waterfront
No
Parking
Off Street
Split Floorplan
HOA
HOA Dues
0.00
Construction
Frame
Floor
Carpet , Vinyl
Exterior Finish
Roof Type
Fireplace
0
County
Brevard
Gated Community
Furnishings
Unfurnished
Home Warranty
Tax Year
2023
Tax Amount
1909.19
55+ Community
Subdivision
Listing Status
Active Under Contract
Property Status
Home Style
Home View
Pool , Trees/Woods
Street
4460 Vancouver Avenue, Cocoa, 32926
Zip Code
D. Basile Real Estate, LLC lists and sells Real Estate and Luxury homes in Melbourne Beach, Merritt Island, Cocoa Beach, Lansing Island, Tortoise Island, Barefoot Bay, Cape Canaveral, Cocoa, Grant Valkaria, Indialantic, Indian Harbour Beach, Malabar, Melbourne, Palm Bay, Rockledge, Satellite Beach, Titusville, West Melbourne and surrounding areas in Brevard.
This listing is courtesy of Compass Florida , LLC. Property Listing Data contained within the D Basile Real Estate website is the property of Brevard MLS and is provided for consumers looking to purchase real estate. Any other use is prohibited. We are not responsible for errors and omissions on this web site. All information contained herein should be deemed reliable but not guaranteed, all representations are approximate, and individual verification is recommended.
Quick MLS Search
Choose the Area, City, then Type of the property you're looking for

Share us on your network!