Listing Address:
3045 Royal Oak Drive, Titusville, FL 32780
Price: $425,000
MLS # 1060964
Property Type: Residential
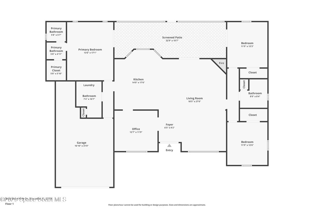
2,043 Total SqFt.
Beds: 3
2,043 Living SqFt.
Baths: 3.00
Year Built: 1986
This property is Active Under Contract. Please contact us for similar properties.
Property Description:
This beautifully upgraded 3 bedroom, 3 bath home offers over 2,000 square feet of thoughtfully designed living space on a generous, private lot. The heart of the home is a fully remodeled kitchen with all-new appliances and Quartz countertops, perfect for cooking and entertaining. Bathrooms have been stylishly updated, and new flooring flows seamlessly throughout the home.Additional highlights include a 2 car garage with workshop space, a newer roof, and updated electrical panels. Conveniently located just 20 minutes from Kennedy Space Center and Playalinda Beach, and about 35 minutes to Orlando, this home combines modern updates, functional living space, and a private, tranquil setting ready for you to move in and enjoy.
Property Listing Details for 3045 Royal Oak Drive, Titusville, FL 32780
Exterior Features
Interior Features
Breakfast Nook , Ceiling Fan(s) , Open Floorplan , Skylight(s) , Split Bedrooms , Walk-In Closet(s)
Equipment / Appliances
Dishwasher , Dryer , Electric Range , Microwave , Refrigerator , Washer
Pool
Pool Description
Utilities
Natural Gas Connected
Additional Rooms
None
Waterfront
No
Parking
Attached , Garage , Garage Door Opener
Split Floorplan
HOA
HOA Dues
0.00
Construction
Block , Concrete , Stucco
Floor
Exterior Finish
Roof Type
Shingle
Fireplace
0
County
Brevard
Gated Community
Furnishings
Negotiable
Home Warranty
Tax Year
0
Tax Amount
0.00
55+ Community
Subdivision
Listing Status
Active Under Contract
Property Status
Home Style
Home View
Street
3045 Royal Oak Drive, Titusville, 32780
Zip Code
D. Basile Real Estate, LLC lists and sells Real Estate and Luxury homes in Melbourne Beach, Merritt Island, Cocoa Beach, Lansing Island, Tortoise Island, Barefoot Bay, Cape Canaveral, Cocoa, Grant Valkaria, Indialantic, Indian Harbour Beach, Malabar, Melbourne, Palm Bay, Rockledge, Satellite Beach, Titusville, West Melbourne and surrounding areas in Brevard.
This listing is courtesy of Blue Marlin Real Estate. Property Listing Data contained within the D Basile Real Estate website is the property of Brevard MLS and is provided for consumers looking to purchase real estate. Any other use is prohibited. We are not responsible for errors and omissions on this web site. All information contained herein should be deemed reliable but not guaranteed, all representations are approximate, and individual verification is recommended.
Quick MLS Search
Choose the Area, City, then Type of the property you're looking for

Share us on your network!