Listing Address:
3300 Bobbi Lane, Titusville, FL 32780
Price: $1,749,000
MLS # 1061146
Property Type: Commercial
This property is Active. Please contact us for similar properties.
Property Description:
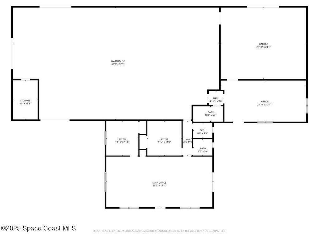
Established Business & Property Zoned M1 for Sale!An excellent opportunity to acquire a well-established land development business with real estate included. This property is ideally located in an active industrial area surrounded by other thriving commercial operations, just off State Road 405, offering convenient access and strong visibility. The concrete block building (5,070 SF) features approximately 2000 ft. of office space, reception area, break room, storage room, two restrooms and a private office with attached conference area and restroom (separate from main office). 3,000 SF of warehouse space equipped with 3 overhead garage doors and 3-phase electrical service for industrial use.Also included in the sale is an additional 0.64-acre lot (Tax ID # 2218534) and all equipment related to ongoing operations.This turnkey business comes with existing annual contracts and a solid customer base, providing immediate income potential for the new owner. More photos to come.
Property Listing Details for 3300 Bobbi Lane, Titusville, FL 32780
Total SqFt.
5,070
Property Sub-Type
Business
Sale / Lease
Sale
Lot Acres
0.92
County
Brevard
Tax Amount
$5,660 (2025)
D. Basile Real Estate, LLC lists and sells Real Estate and Luxury homes in Melbourne Beach, Merritt Island, Cocoa Beach, Lansing Island, Tortoise Island, Barefoot Bay, Cape Canaveral, Cocoa, Grant Valkaria, Indialantic, Indian Harbour Beach, Malabar, Melbourne, Palm Bay, Rockledge, Satellite Beach, Titusville, West Melbourne and surrounding areas in Brevard.
This listing is courtesy of Mutter Realty. Property Listing Data contained within the D Basile Real Estate website is the property of Brevard MLS and is provided for consumers looking to purchase real estate. Any other use is prohibited. We are not responsible for errors and omissions on this web site. All information contained herein should be deemed reliable but not guaranteed, all representations are approximate, and individual verification is recommended.
Quick MLS Search
Choose the Area, City, then Type of the property you're looking for

Share us on your network!