Listing Address:
5855 Highway A1a , Melbourne Beach, FL 32951
Price: $2,150,000
MLS # 1063085
Property Type: Residential
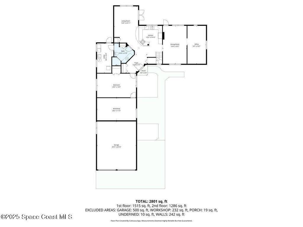
2,892 Total SqFt.
Beds: 3
2,892 Living SqFt.
Baths: 3.00
Year Built: 1972
This property is Under Contract. Please contact us for similar properties.
Property Description:
Exceptional oceanfront property offering a private coastal lifestyle on nearly .78 acres. Set well back from A1A the deep front yard creates a quiet retreat with space for a future pool, expanded outdoor living or guest amenities. A wide approach and ample parking area provide smooth access for family and guests. Along the oceanfront enjoy 48' of shoreline framed by mature landscaping for natural privacy far from public beach access and perfect for peaceful mornings beach walks and relaxed seaside living. A grandfathered oceanside gazebo with hot tub sits just steps from the dunes offering a unique spot for gatherings unwinding under the stars or watching spectacular space shuttle launches. The second-story oceanside deck provides elevated views and refreshing breezes ideal for sunrise coffee or evening cocktails. A 273 sq ft workshop with a separate entrance adds flexibility for hobbies or storage. A rare chance to enjoy space serenity and the true oceanfront lifestyle.
Property Listing Details for 5855 Highway A1a , Melbourne Beach, FL 32951
Exterior Features
Balcony
Interior Features
Breakfast Bar , Ceiling Fan(s) , Entrance Foyer , Open Floorplan , Primary Bathroom -Tub with Separate Shower , Split Bedrooms , Walk-In Closet(s)
Equipment / Appliances
Dishwasher , Electric Range , Microwave , Refrigerator
Pool
Pool Description
Utilities
Cable Connected , Electricity Connected , Water Connected
Additional Rooms
None
Waterfront
Yes
Water Type
Parking
Additional Parking , Garage , Garage Door Opener , RV Access/Parking
Split Floorplan
HOA
HOA Dues
0.00
Construction
Fiber Cement , Frame
Floor
Carpet , Tile
Exterior Finish
Roof Type
Shingle
Fireplace
0
County
Brevard
Gated Community
Furnishings
Unfurnished
Home Warranty
Tax Year
2025
Tax Amount
6626.02
55+ Community
Subdivision
Listing Status
Pending
Property Status
Home Style
Other
Home View
Beach , Ocean
Street
5855 Highway A1a , Melbourne Beach, 32951
Zip Code
D. Basile Real Estate, LLC lists and sells Real Estate and Luxury homes in Melbourne Beach, Merritt Island, Cocoa Beach, Lansing Island, Tortoise Island, Barefoot Bay, Cape Canaveral, Cocoa, Grant Valkaria, Indialantic, Indian Harbour Beach, Malabar, Melbourne, Palm Bay, Rockledge, Satellite Beach, Titusville, West Melbourne and surrounding areas in Brevard.
This listing is courtesy of One Sotheby's International. Property Listing Data contained within the D Basile Real Estate website is the property of Brevard MLS and is provided for consumers looking to purchase real estate. Any other use is prohibited. We are not responsible for errors and omissions on this web site. All information contained herein should be deemed reliable but not guaranteed, all representations are approximate, and individual verification is recommended.
Quick MLS Search
Choose the Area, City, then Type of the property you're looking for

Share us on your network!