Listing Address:
1505 N Highway A1A , Indialantic, FL 32903
Price: $649,000
MLS # 1063388
Property Type: Residential
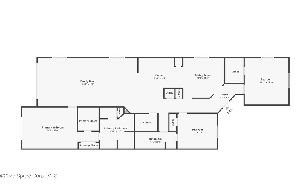
2,011 Total SqFt.
Beds: 3
2,011 Living SqFt.
Baths: 2.00
Year Built: 1995
This property is Active. Please contact us for similar properties.
Property Description:
Welcome to your dream oceanfront retreat! This southeast corner unit condo offers unparalleled beachside living with direct access to the sandy shores of the Atlantic Ocean & an easily convertible 4th bedroom. Imagine waking up to the soothing sound of waves and watching the sunrise over the horizon from your own private balcony. Step outside, and you're just a few steps away from the pristine beach--perfect for morning walks, beach runs, sunbathing, or a spontaneous dip in the refreshing waters. Whether you're lounging on the shore or enjoying panoramic views of the endless ocean from your living room, every moment feels like a coastal escape. Grab your surfboard, or enjoy a peaceful paddleboarding session as the sun sets. When you're not soaking in the natural beauty, you'll find a gym right across the street and you can indulge in one of the best sushi restaurants on the Space Coast, just steps from your front door.
Property Listing Details for 1505 N Highway A1A , Indialantic, FL 32903
Exterior Features
Balcony , Storm Shutters
Interior Features
Breakfast Bar , Ceiling Fan(s) , Open Floorplan , Pantry , Primary Downstairs , Walk-In Closet(s)
Equipment / Appliances
Dishwasher , Disposal , Dryer , Electric Water Heater , Microwave , Refrigerator , Washer
Pool
Pool Description
Utilities
Cable Available , Electricity Available
Additional Rooms
None
Waterfront
Yes
Parking
Underground
Split Floorplan
HOA
HOA Dues
0.00
Construction
Block , Concrete , Stucco
Floor
Carpet , Tile
Exterior Finish
Roof Type
Concrete , Membrane
Fireplace
0
County
Brevard
Gated Community
Furnishings
Unfurnished
Home Warranty
Tax Year
2023
Tax Amount
7086.67
55+ Community
Subdivision
Listing Status
Active
Property Status
Home Style
Home View
Beach , Ocean , Water
Street
1505 N Highway A1A , Indialantic, 32903
Zip Code
D. Basile Real Estate, LLC lists and sells Real Estate and Luxury homes in Melbourne Beach, Merritt Island, Cocoa Beach, Lansing Island, Tortoise Island, Barefoot Bay, Cape Canaveral, Cocoa, Grant Valkaria, Indialantic, Indian Harbour Beach, Malabar, Melbourne, Palm Bay, Rockledge, Satellite Beach, Titusville, West Melbourne and surrounding areas in Brevard.
This listing is courtesy of Compass Florida , LLC. Property Listing Data contained within the D Basile Real Estate website is the property of Brevard MLS and is provided for consumers looking to purchase real estate. Any other use is prohibited. We are not responsible for errors and omissions on this web site. All information contained herein should be deemed reliable but not guaranteed, all representations are approximate, and individual verification is recommended.
Quick MLS Search
Choose the Area, City, then Type of the property you're looking for

Share us on your network!