Listing Address:
220 Avenida De Paz , Indialantic, FL 32903
Price: $825,500
MLS # 1063709
Property Type: Residential
2,724 Total SqFt.
Beds: 4
2,724 Living SqFt.
Baths: 3.00
Year Built: 1955
This property is Active. Please contact us for similar properties.
Property Description:
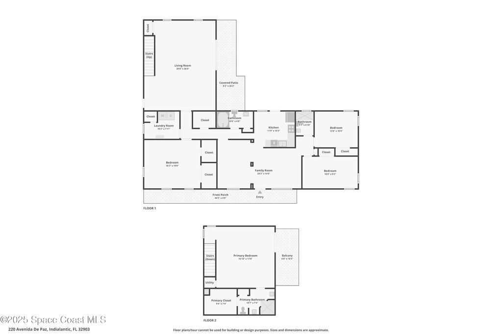
Just one block from the sparkling shores of Indialantic, this spacious 4-bedroom, 3-bath pool home offers the ideal setting to enjoy Florida coastal living. With 2,724 sq. ft. of interior space, an inviting in-ground pool, and multiple indoor/outdoor entertainment areas, this property is perfect for those seeking a full-time residence or a fantastic vacation retreat. The main level features terrazzo flooring in bedrooms and baths, luxury vinyl plank in the primary living spaces, and a bright kitchen complete with granite countertops, wood cabinetry, and a glass tile backsplash. Triple pocket sliders open wide to the pool deck, and outdoor bar seating, inviting seamless indoor-outdoor enjoyment. The upstairs primary suite offers a private balcony overlooking the pool, dual vanities, and a full bath, while an additional separate living area with tile flooring and private access presents excellent versatility for guests, hobbies, or potential rental opportunities.
Property Listing Details for 220 Avenida De Paz , Indialantic, FL 32903
Exterior Features
Balcony , Outdoor Shower
Interior Features
Ceiling Fan(s) , Eat-in Kitchen , Primary Bathroom - Shower No Tub , Split Bedrooms
Equipment / Appliances
Dishwasher , Dryer , Electric Range , Electric Water Heater , Microwave , Refrigerator , Washer
Pool
Pool Description
Fenced , In Ground
Utilities
Cable Available , Electricity Connected , Sewer Connected , Water Connected
Additional Rooms
Bedroom 1 , Bedroom 2 , Bedroom 3 , Family Room , Kitchen , Living Room , Primary Bedroom
Waterfront
No
Parking
Detached , Garage
Split Floorplan
HOA
HOA Dues
0.00
Construction
Block , Stucco
Floor
Carpet , Terrazzo , Tile , Vinyl
Exterior Finish
Roof Type
Shingle
Fireplace
0
County
Brevard
Gated Community
Furnishings
Unfurnished
Home Warranty
Tax Year
2025
Tax Amount
3854.42
55+ Community
Subdivision
Listing Status
Active
Property Status
Home Style
Ranch
Home View
Trees/Woods
Street
220 Avenida De Paz , Indialantic, 32903
Zip Code
D. Basile Real Estate, LLC lists and sells Real Estate and Luxury homes in Melbourne Beach, Merritt Island, Cocoa Beach, Lansing Island, Tortoise Island, Barefoot Bay, Cape Canaveral, Cocoa, Grant Valkaria, Indialantic, Indian Harbour Beach, Malabar, Melbourne, Palm Bay, Rockledge, Satellite Beach, Titusville, West Melbourne and surrounding areas in Brevard.
This listing is courtesy of Engel & Voelkers Lakeland. Property Listing Data contained within the D Basile Real Estate website is the property of Brevard MLS and is provided for consumers looking to purchase real estate. Any other use is prohibited. We are not responsible for errors and omissions on this web site. All information contained herein should be deemed reliable but not guaranteed, all representations are approximate, and individual verification is recommended.
Quick MLS Search
Choose the Area, City, then Type of the property you're looking for

Share us on your network!