Listing Address:
2013 Sorento Circle, Melbourne, FL 32904
Price: $489,500
MLS # 1064515
Property Type: Residential
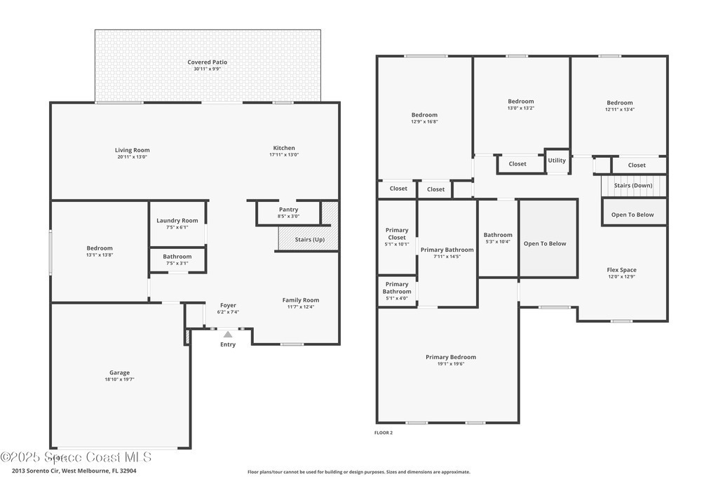
2,862 Total SqFt.
Beds: 5
2,862 Living SqFt.
Baths: 3.00 ½ Baths: 1
Year Built: 2003
This property is Active Under Contract. Please contact us for similar properties.
Property Description:
Easy to show! Behind the gates of a low-HOA community, a 5BD/2.5BA standout delivers instant wow w/ fresh interior & exterior paint, new roof, new exterior light fixtures, stone-infused LVP, & custom tile accent walls that feel straight from a designer's mood board. The modern island kitchen steals the show w/ Cambria marbled quartz, counter-to-ceiling subway tile, soft-close artisan white cabinetry, Cafe appliances w/ bronze hardware, an apron-front sink, & a hidden walk-in pantry complete w/ a built-in microwave + butcher-block buffet made for hosting. A 1st-floor BD w/ closet flexes as guest space, office, or bonus room, while the family room brings character w/ shiplap-style walls + floating shelves before opening to a spacious loft. The primary suite reads like a true retreat, styled w/ bedside chandeliers & a spa-like ensuite featuring frosted glass sliders, oblong white tile, a jetted shower, & double rectangular vessel sinks w/ warm wood accents.
Property Listing Details for 2013 Sorento Circle, Melbourne, FL 32904
Exterior Features
Fire Pit
Interior Features
Built-in Features , Ceiling Fan(s) , Entrance Foyer , Kitchen Island , Open Floorplan , Pantry , Primary Bathroom - Shower No Tub , Vaulted Ceiling(s) , Walk-In Closet(s)
Equipment / Appliances
Dishwasher , Disposal , Electric Range , Refrigerator
Pool
Pool Description
Utilities
Cable Available , Electricity Available , Sewer Available , Water Available
Additional Rooms
None
Waterfront
No
Parking
Attached , Garage , Garage Door Opener
Split Floorplan
HOA
HOA Dues
0.00
Construction
Concrete , Stucco
Floor
Stone , Vinyl
Exterior Finish
Roof Type
Fireplace
0
County
Brevard
Gated Community
Furnishings
Unfurnished
Home Warranty
Tax Year
2025
Tax Amount
5518.69
55+ Community
Subdivision
Listing Status
Active Under Contract
Property Status
Home Style
Home View
Street
2013 Sorento Circle, Melbourne, 32904
Zip Code
D. Basile Real Estate, LLC lists and sells Real Estate and Luxury homes in Melbourne Beach, Merritt Island, Cocoa Beach, Lansing Island, Tortoise Island, Barefoot Bay, Cape Canaveral, Cocoa, Grant Valkaria, Indialantic, Indian Harbour Beach, Malabar, Melbourne, Palm Bay, Rockledge, Satellite Beach, Titusville, West Melbourne and surrounding areas in Brevard.
This listing is courtesy of Compass Florida , LLC. Property Listing Data contained within the D Basile Real Estate website is the property of Brevard MLS and is provided for consumers looking to purchase real estate. Any other use is prohibited. We are not responsible for errors and omissions on this web site. All information contained herein should be deemed reliable but not guaranteed, all representations are approximate, and individual verification is recommended.
Quick MLS Search
Choose the Area, City, then Type of the property you're looking for

Share us on your network!