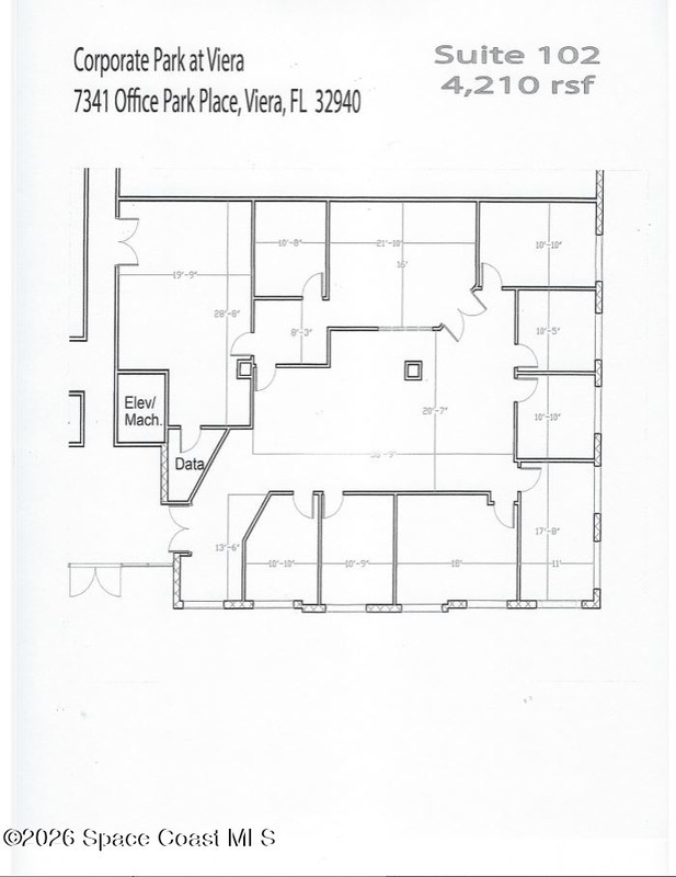
Listing Address:
7341 Office Park Place, Melbourne, FL 32940
Price: $8,567
MLS # 1064578
Property Type: Commercial
This property is Active. Please contact us for similar properties.
Property Description:
Beautiful first floor class A space! 4210 sq.ft near entrance with large reception area, large open bull pin area, break room and private bathroom. 5 private offices. Another large open space perfect for large conference room! Common area bathrooms right across the hall from this office. Located in Viera on the corner of Wickham Road and Murrell. Great location to I95! Available 9/1/2026
Property Listing Details for 7341 Office Park Place, Melbourne, FL 32940
Total SqFt.
4,210
Property Sub-Type
Office
Sale / Lease
Lease
Lot Acres
0.03
County
Brevard
Tax Amount
$4,995 (2025)
D. Basile Real Estate, LLC lists and sells Real Estate and Luxury homes in Melbourne Beach, Merritt Island, Cocoa Beach, Lansing Island, Tortoise Island, Barefoot Bay, Cape Canaveral, Cocoa, Grant Valkaria, Indialantic, Indian Harbour Beach, Malabar, Melbourne, Palm Bay, Rockledge, Satellite Beach, Titusville, West Melbourne and surrounding areas in Brevard.
This listing is courtesy of One Sotheby's International. Property Listing Data contained within the D Basile Real Estate website is the property of Brevard MLS and is provided for consumers looking to purchase real estate. Any other use is prohibited. We are not responsible for errors and omissions on this web site. All information contained herein should be deemed reliable but not guaranteed, all representations are approximate, and individual verification is recommended.
Quick MLS Search
Choose the Area, City, then Type of the property you're looking for

Share us on your network!