Listing Address:
146 Holiday Park Boulevard, Palm Bay, FL 32907
Price: $248,900
MLS # 1065403
Property Type: Residential
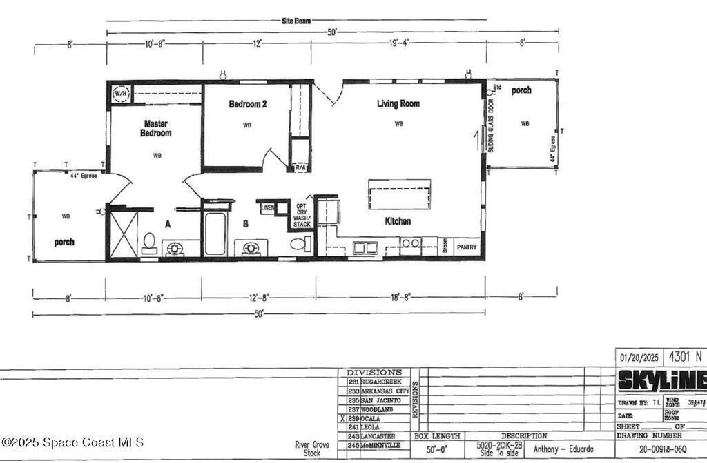
800 Total SqFt.
Beds: 2
800 Living SqFt.
Baths: 2.00
Year Built: 2025
This property is Active. Please contact us for similar properties.
Property Description:
This brand-new 2025 manufactured home offers modern living in a secure, 55+gated community with 24-hour security. Featuring 2 bedrooms, 2 bathrooms, and 800 sq. ft., this home is thoughtfully designed for comfort and convenience. The open-concept kitchen boasts a spacious island, stainless steel appliances, and plenty of counter space, making it perfect for cooking and entertaining. Enjoy peaceful outdoor living with front and rear porches, along with a carport for easy parking.Residents have access to a clubhouse, community pool, and included amenities such as internet, cable TV, and lawn care. Conveniently located just minutes from shopping areas, this home offers a stress-free, low-maintenance lifestyle in a quiet yet accessible location For more details or to schedule a private tour
Property Listing Details for 146 Holiday Park Boulevard, Palm Bay, FL 32907
Exterior Features
Interior Features
Kitchen Island
Equipment / Appliances
Dishwasher , Electric Oven , Microwave , Refrigerator
Pool
Pool Description
Utilities
Cable Connected , Electricity Connected , Sewer Connected , Water Connected
Additional Rooms
Bedroom 2 , Living Room , Primary Bedroom
Waterfront
No
Parking
Carport
Split Floorplan
HOA
HOA Dues
0.00
Construction
Frame
Floor
Exterior Finish
Roof Type
Shingle
Fireplace
0
County
Brevard
Gated Community
Furnishings
Unfurnished
Home Warranty
Tax Year
2024
Tax Amount
3295.28
55+ Community
Subdivision
Listing Status
Active
Property Status
Home Style
Home View
Street
146 Holiday Park Boulevard, Palm Bay, 32907
Zip Code
D. Basile Real Estate, LLC lists and sells Real Estate and Luxury homes in Melbourne Beach, Merritt Island, Cocoa Beach, Lansing Island, Tortoise Island, Barefoot Bay, Cape Canaveral, Cocoa, Grant Valkaria, Indialantic, Indian Harbour Beach, Malabar, Melbourne, Palm Bay, Rockledge, Satellite Beach, Titusville, West Melbourne and surrounding areas in Brevard.
This listing is courtesy of RE/MAX Elite. Property Listing Data contained within the D Basile Real Estate website is the property of Brevard MLS and is provided for consumers looking to purchase real estate. Any other use is prohibited. We are not responsible for errors and omissions on this web site. All information contained herein should be deemed reliable but not guaranteed, all representations are approximate, and individual verification is recommended.
Quick MLS Search
Choose the Area, City, then Type of the property you're looking for

Share us on your network!