Listing Address:
1092 Canfield Circle, Palm Bay, FL 32909
Price: $399,982
MLS # 1066937
Property Type: Residential
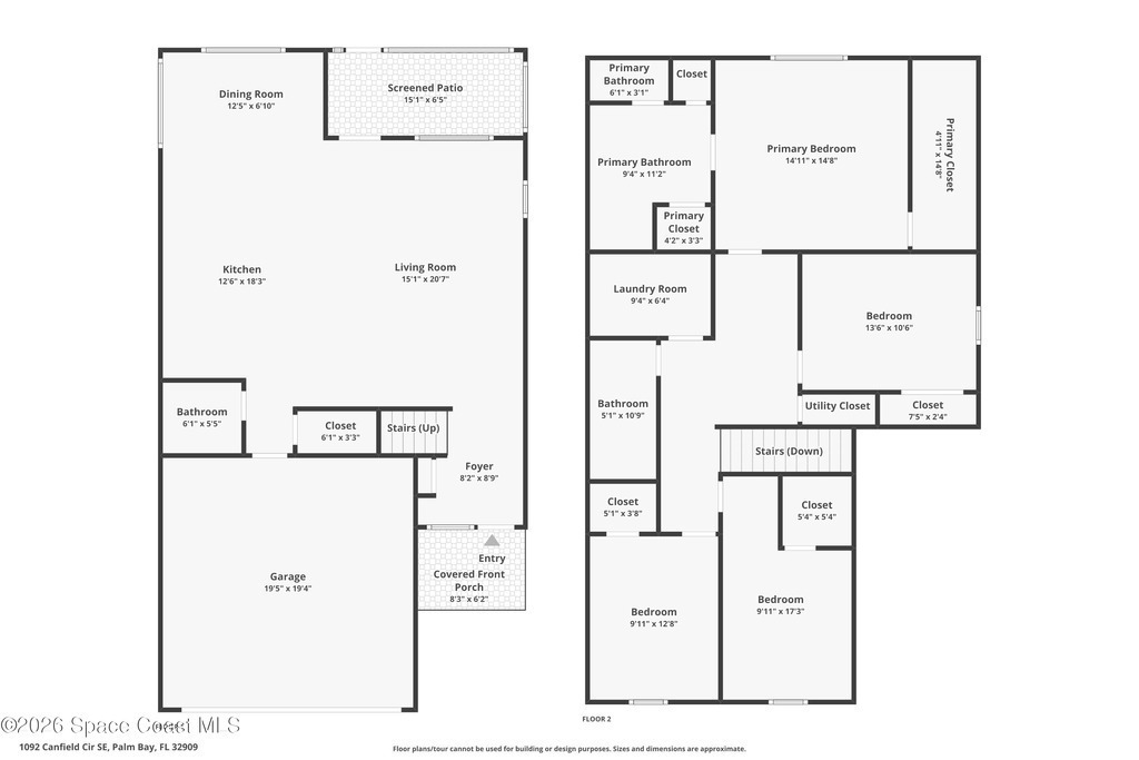
2,202 Total SqFt.
Beds: 4
2,202 Living SqFt.
Baths: 3.00 ½ Baths: 1
Year Built: 2023
This property is Active. Please contact us for similar properties.
Property Description:
Lakefront home built in 2023, priced under $400K--and now offering $10,000 toward buyer closing costs or rate buy-down.Get the benefits of new construction without the wait--and without the added upgrade costs. Situated on a premium lakefront homesite in the Gardens at Waterstone, this two-story residence offers over 2,100 square feet of thoughtfully designed living space with 4 bedrooms, 2.5 baths, and a spacious loft.The open-concept main level features tile flooring throughout and a seamless flow between the kitchen, dining area, and great room--perfect for everyday living and entertaining. Unlike many new construction homes, this property is already upgraded beyond builder grade, including accordion shutters for 2nd floor, a stylish tile backsplash, upgraded lighting, ceiling fans throughout, and a screened lanai overlooking the peaceful lake--features that often cost buyers thousands after closing.Upstairs, all four bedrooms are thoughtfully positioned along with a centrally
Property Listing Details for 1092 Canfield Circle, Palm Bay, FL 32909
Exterior Features
Storm Shutters
Interior Features
Breakfast Bar , Ceiling Fan(s) , Entrance Foyer , Open Floorplan , Pantry
Equipment / Appliances
Dishwasher , Disposal , Electric Range , Microwave , Refrigerator
Pool
Pool Description
Utilities
Cable Connected , Electricity Connected , Sewer Connected , Water Connected
Additional Rooms
Bedroom 2 , Bedroom 3 , Bedroom 4 , Dining Room , Great Room , Other Room , Primary Bedroom
Waterfront
Yes
Water Type
Parking
Garage , Garage Door Opener
Split Floorplan
HOA
HOA Dues
0.00
Construction
Block , Concrete , Frame , Stucco , Vinyl Siding
Floor
Carpet , Tile
Exterior Finish
Roof Type
Shingle
Fireplace
0
County
Brevard
Gated Community
Furnishings
Unfurnished
Home Warranty
Tax Year
2025
Tax Amount
5786.91
55+ Community
Subdivision
Listing Status
Active
Property Status
Home Style
Traditional
Home View
Lake , Pond
Street
1092 Canfield Circle, Palm Bay, 32909
Zip Code
D. Basile Real Estate, LLC lists and sells Real Estate and Luxury homes in Melbourne Beach, Merritt Island, Cocoa Beach, Lansing Island, Tortoise Island, Barefoot Bay, Cape Canaveral, Cocoa, Grant Valkaria, Indialantic, Indian Harbour Beach, Malabar, Melbourne, Palm Bay, Rockledge, Satellite Beach, Titusville, West Melbourne and surrounding areas in Brevard.
This listing is courtesy of Engel&Voelkers Melb Beachside. Property Listing Data contained within the D Basile Real Estate website is the property of Brevard MLS and is provided for consumers looking to purchase real estate. Any other use is prohibited. We are not responsible for errors and omissions on this web site. All information contained herein should be deemed reliable but not guaranteed, all representations are approximate, and individual verification is recommended.
Quick MLS Search
Choose the Area, City, then Type of the property you're looking for

Share us on your network!