Listing Address:
4570 Radiant Way, Melbourne, FL 32901
Price: $278,000
MLS # 1067641
Property Type: Residential
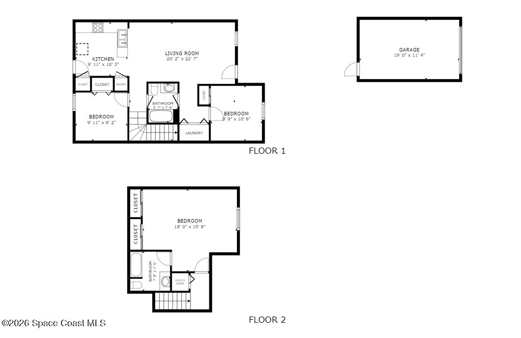
1,277 Total SqFt.
Beds: 3
1,277 Living SqFt.
Baths: 2.00
Year Built: 2008
This property is Active. Please contact us for similar properties.
Property Description:
Resort-style community of Sonesta Walk. Townhouse offers 3 bedrooms & 2 baths with private fenced in courtyard with paver patio that backs the pond. Main level has 2 bedrooms & 1 bath with the private primary suite with tray ceiling upstairs. Tile flooring in all main areas, kitchen, bathrooms and bedrooms. Updated kitchen with SS appliances. 1 car detached garage. New washer & dryer. Newer Roof. Community with pool, hot tub, clubhouse, BBQ area, volleyball, tennis, basketball & playground.
Property Listing Details for 4570 Radiant Way, Melbourne, FL 32901
Exterior Features
Interior Features
Breakfast Bar , Ceiling Fan(s) , Open Floorplan , Pantry , Primary Bathroom - Tub with Shower
Equipment / Appliances
Dishwasher , Dryer , Electric Range , Microwave , Refrigerator , Washer
Pool
Pool Description
Utilities
Electricity Connected , Sewer Connected , Water Connected
Additional Rooms
None
Waterfront
No
Parking
Detached , Garage
Split Floorplan
HOA
HOA Dues
0.00
Construction
Block , Frame , Stucco
Floor
Carpet , Tile
Exterior Finish
Roof Type
Shingle
Fireplace
0
County
Brevard
Gated Community
Furnishings
Unfurnished
Home Warranty
Tax Year
2025
Tax Amount
4191.95
55+ Community
Subdivision
Listing Status
Active
Property Status
Home Style
Home View
Pond
Street
4570 Radiant Way, Melbourne, 32901
Zip Code
D. Basile Real Estate, LLC lists and sells Real Estate and Luxury homes in Melbourne Beach, Merritt Island, Cocoa Beach, Lansing Island, Tortoise Island, Barefoot Bay, Cape Canaveral, Cocoa, Grant Valkaria, Indialantic, Indian Harbour Beach, Malabar, Melbourne, Palm Bay, Rockledge, Satellite Beach, Titusville, West Melbourne and surrounding areas in Brevard.
This listing is courtesy of Real Broker , LLC. Property Listing Data contained within the D Basile Real Estate website is the property of Brevard MLS and is provided for consumers looking to purchase real estate. Any other use is prohibited. We are not responsible for errors and omissions on this web site. All information contained herein should be deemed reliable but not guaranteed, all representations are approximate, and individual verification is recommended.
Quick MLS Search
Choose the Area, City, then Type of the property you're looking for

Share us on your network!