Listing Address:
662 Rossmoor Circle, Melbourne, FL 32940
Price: $799,000
MLS # 1067951
Property Type: Residential
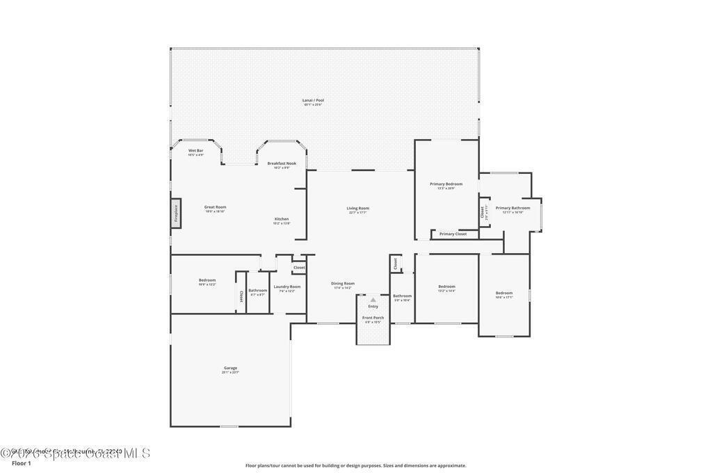
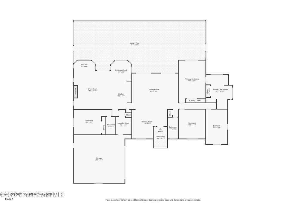
2,698 Total SqFt.
Beds: 4
2,698 Living SqFt.
Baths: 3.00
Year Built: 1987
This property is Active. Please contact us for similar properties.
Property Description:
WATERFRONT- PRIVATE POOL and SPA Located in the highly sought-after Fairways at Suntree, this updated 4-bedroom, 3-bath, 2-car garage home, near golfing, offers peaceful lake views.The home features a spacious, open layout with a large living room, chimney, bar area, breakfast nook, a formal dining area, plus a separate family/living room ideal for entertaining. Recent updates include new flooring, renovated bathrooms, and newer appliances (not all shown in photos). The primary bedroom and all main living areas enjoy serene water views. Step outside to a private pool overlooking the lake, perfect for relaxing or hosting.This property is in a prime location near Suntree Country Club, numerous golf courses, the Brevard Zoo, The Avenue Viera for shopping and dining, easy access to beaches, the Kennedy Space Center, Melbourne and Orlando International Airports, Vero Beach, Disney World, and other world class attractions.
Property Listing Details for 662 Rossmoor Circle, Melbourne, FL 32940
Exterior Features
Interior Features
Breakfast Bar , Breakfast Nook , Built-in Features , Ceiling Fan(s) , Entrance Foyer , Guest Suite , In-Law Floorplan , Kitchen Island , Open Floorplan , Primary Bathroom -Tub with Separate Shower , Primary Downstairs , Split Bedrooms
Equipment / Appliances
Dishwasher , Dryer , Electric Oven , Electric Range , Microwave , Refrigerator , Washer
Pool
Pool Description
In Ground , Waterfall
Utilities
Cable Connected , Electricity Connected , Sewer Connected , Water Connected
Additional Rooms
None
Waterfront
Yes
Water Type
Parking
Attached , Garage , Garage Door Opener
Split Floorplan
HOA
HOA Dues
0.00
Construction
Frame , Stucco
Floor
Laminate , Tile
Exterior Finish
Roof Type
Shingle
Fireplace
0
County
Brevard
Gated Community
Furnishings
Negotiable
Home Warranty
Tax Year
2025
Tax Amount
4742.41
55+ Community
Subdivision
Listing Status
Active
Property Status
Home Style
Home View
Lake , Water
Street
662 Rossmoor Circle, Melbourne, 32940
Zip Code
D. Basile Real Estate, LLC lists and sells Real Estate and Luxury homes in Melbourne Beach, Merritt Island, Cocoa Beach, Lansing Island, Tortoise Island, Barefoot Bay, Cape Canaveral, Cocoa, Grant Valkaria, Indialantic, Indian Harbour Beach, Malabar, Melbourne, Palm Bay, Rockledge, Satellite Beach, Titusville, West Melbourne and surrounding areas in Brevard.
This listing is courtesy of Compass Florida LLC. Property Listing Data contained within the D Basile Real Estate website is the property of Brevard MLS and is provided for consumers looking to purchase real estate. Any other use is prohibited. We are not responsible for errors and omissions on this web site. All information contained herein should be deemed reliable but not guaranteed, all representations are approximate, and individual verification is recommended.
Quick MLS Search
Choose the Area, City, then Type of the property you're looking for

Share us on your network!