Listing Address:
3904 Saint Armens Circle, Melbourne, FL 32934
Price: $414,900
MLS # 1068151
Property Type: Residential
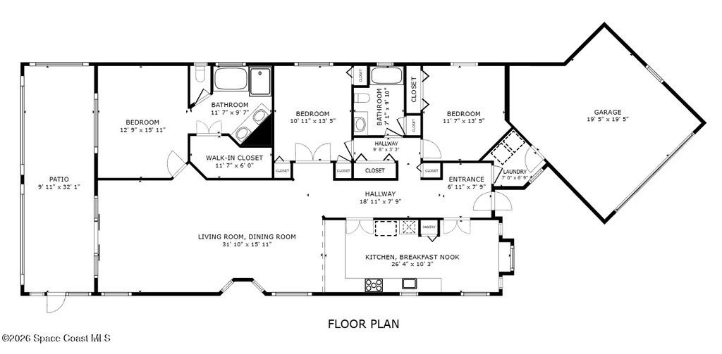
2,006 Total SqFt.
Beds: 3
2,006 Living SqFt.
Baths: 2.00
Year Built: 1998
This property is Active. Please contact us for similar properties.
Property Description:
A must see. Motivated Seller. This beautiful house has it all, 3 bedrooms, 2 baths and a 2 car garage. This one story home has tons of upgrades included an enclosed back porch. Home features solar panels for the electric, fully installed and paid for over a 30K dollar upgrade. Open floor plan with newer floors, updated custom kitchen that was remodeled to open to the dining room including custom iron gates to set the kitchen design as one of a kind. Privacy fence in the back yard and paved driveway, custom shelves in the garage for more storage. Seller recently added enclosed porch which adds tons of space to the square footage under roof. A full size house generator for the home if ever needed. Well maintained and other custom features.The association has tennis courts and a pool for cooling off during the hot summer. Location location, walking distance to the King Center and Publix shopping center. Do not miss out on this beauty.
Property Listing Details for 3904 Saint Armens Circle, Melbourne, FL 32934
Exterior Features
Storm Shutters
Interior Features
Breakfast Bar , Breakfast Nook , Built-in Features , Ceiling Fan(s) , Eat-in Kitchen , Pantry , Primary Bathroom - Tub with Shower , Split Bedrooms , Vaulted Ceiling(s) , Walk-In Closet(s)
Equipment / Appliances
Dishwasher , Disposal , Gas Cooktop , Gas Water Heater , Microwave , Refrigerator
Pool
Pool Description
Utilities
Cable Available , Electricity Available , Natural Gas Connected , Sewer Connected , Water Available , Water Connected
Additional Rooms
None
Waterfront
No
Parking
Attached , Garage
Split Floorplan
HOA
HOA Dues
0.00
Construction
Block , Concrete , Stucco
Floor
Tile , Vinyl
Exterior Finish
Roof Type
Shingle
Fireplace
0
County
Brevard
Gated Community
Furnishings
Unfurnished
Home Warranty
Tax Year
2025
Tax Amount
2936.82
55+ Community
Subdivision
Listing Status
Active
Property Status
Home Style
Ranch , Traditional
Home View
Other
Street
3904 Saint Armens Circle, Melbourne, 32934
Zip Code
D. Basile Real Estate, LLC lists and sells Real Estate and Luxury homes in Melbourne Beach, Merritt Island, Cocoa Beach, Lansing Island, Tortoise Island, Barefoot Bay, Cape Canaveral, Cocoa, Grant Valkaria, Indialantic, Indian Harbour Beach, Malabar, Melbourne, Palm Bay, Rockledge, Satellite Beach, Titusville, West Melbourne and surrounding areas in Brevard.
This listing is courtesy of All Real Estate , Inc.. Property Listing Data contained within the D Basile Real Estate website is the property of Brevard MLS and is provided for consumers looking to purchase real estate. Any other use is prohibited. We are not responsible for errors and omissions on this web site. All information contained herein should be deemed reliable but not guaranteed, all representations are approximate, and individual verification is recommended.
Quick MLS Search
Choose the Area, City, then Type of the property you're looking for

Share us on your network!