Listing Address:
200 Circle Avenue, Melbourne, FL 32935
Price: $365,000
MLS # 1068249
Property Type: Residential
1,945 Total SqFt.
Beds: 3
1,945 Living SqFt.
Baths: 3.00 ½ Baths: 1
Year Built: 2021
This property is Active. Please contact us for similar properties.
Property Description:
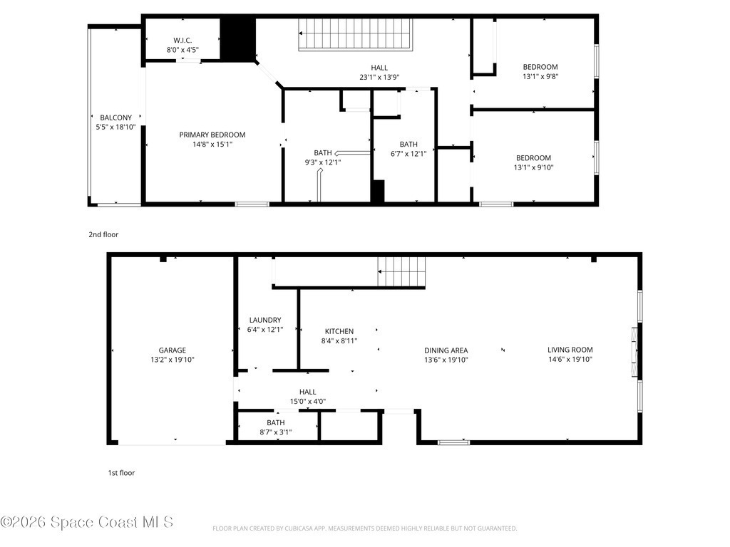
Located just 10 min. from Downtown Melbourne & from EGAD & 15 min. from the gorgeous Atlantic Ocean, convenience meets lifestyle at every turn. You may never want to leave. This home rests on a very private corner lot w/ a yard designed for both entertaining & unwinding--complete w/ a pergola, hot tub & cozy electric fireplace. Areca palms surround the space, creating total privacy, while a beautiful fence keeps Fido safely at home. Inside, tile floors flow seamlessly throughout the downstairs, welcoming you into a fully open-concept layout w/ a modern bohemian touch. The kitchen feat. granite countertops, ss appliances & white shaker cabinets. The staircase is lined with LVP that continues effortlessly into the upstairs bedrooms. The primary suite offers a generous, spa-like bathroom & a private balcony w/ river views. Inviting yet calming, peaceful yet perfect for gathering--this townhome feels like home. Lead the way... just follow the pavers and see the beauty for yourself.
Property Listing Details for 200 Circle Avenue, Melbourne, FL 32935
Exterior Features
Balcony
Interior Features
Breakfast Bar , Ceiling Fan(s) , Open Floorplan , Pantry , Split Bedrooms , Walk-In Closet(s)
Equipment / Appliances
Dishwasher , Disposal , Dryer , Electric Range , Electric Water Heater , Freezer , Ice Maker , Microwave , Refrigerator , Washer
Pool
Pool Description
Utilities
Cable Available , Electricity Connected , Sewer Connected , Water Connected
Additional Rooms
Primary Bedroom
Waterfront
No
Parking
Attached , Garage , Garage Door Opener
Split Floorplan
HOA
HOA Dues
0.00
Construction
Block , Concrete , Stucco
Floor
Tile , Vinyl
Exterior Finish
Roof Type
Shingle
D. Basile Real Estate, LLC lists and sells Real Estate and Luxury homes in Melbourne Beach, Merritt Island, Cocoa Beach, Lansing Island, Tortoise Island, Barefoot Bay, Cape Canaveral, Cocoa, Grant Valkaria, Indialantic, Indian Harbour Beach, Malabar, Melbourne, Palm Bay, Rockledge, Satellite Beach, Titusville, West Melbourne and surrounding areas in Brevard.
This listing is courtesy of Real Broker LLC. Property Listing Data contained within the D Basile Real Estate website is the property of Brevard MLS and is provided for consumers looking to purchase real estate. Any other use is prohibited. We are not responsible for errors and omissions on this web site. All information contained herein should be deemed reliable but not guaranteed, all representations are approximate, and individual verification is recommended.
Quick MLS Search
Choose the Area, City, then Type of the property you're looking for

Share us on your network!