Listing Address:
389 Commerce Parkway, Rockledge, FL 32955
Price: $19,897
MLS # 1068361
Property Type: Commercial
This property is Active. Please contact us for similar properties.
Property Description:
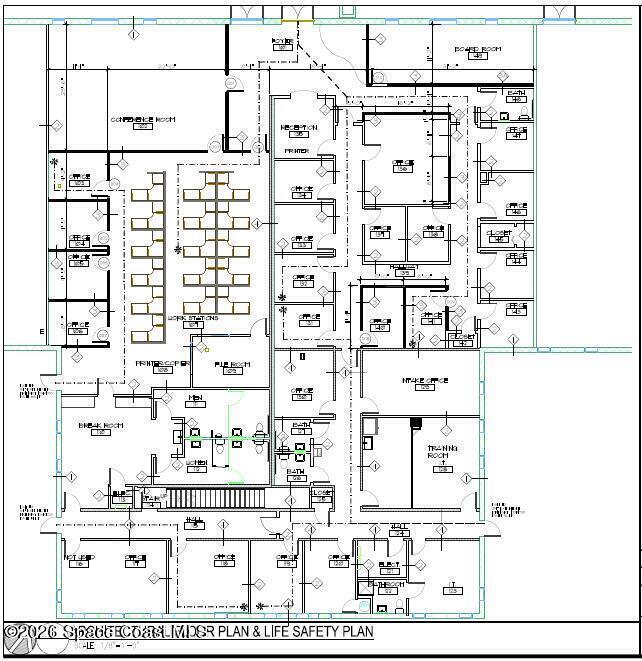
Excellent opportunity to lease a 10,381 SF Class A office in the center of Brevard County! Interior includes a reception, multiple conference/training rooms, 22 offices, bullpen, a break room, and 6 restrooms. Upstairs is est. 500 SF IT / Mechanical room. Keypad/badge entry, 2' x 2' drop ceiling tiles and LVP/Carpet flooring throughout. Building amenities include a covered portico for drop off and pickup. There are 120 asphalt paved/striped/illuminated common parking spaces. Property is strategically positioned directly on Murrell Road which is the primary north/south artery between Viera and Rockledge. Close proximity to Interstate 95 via Viera Boulevard and Barnes Boulevard. Lots of schools, golf/country clubs, shopping and dining nearby. Make this the future home for your business today!
Property Listing Details for 389 Commerce Parkway, Rockledge, FL 32955
Subdivision
Total SqFt.
21,420
Property Sub-Type
Office
Sale / Lease
Lease
Lot Acres
2.89
County
Brevard
Tax Amount
$30,398 (2025)
D. Basile Real Estate, LLC lists and sells Real Estate and Luxury homes in Melbourne Beach, Merritt Island, Cocoa Beach, Lansing Island, Tortoise Island, Barefoot Bay, Cape Canaveral, Cocoa, Grant Valkaria, Indialantic, Indian Harbour Beach, Malabar, Melbourne, Palm Bay, Rockledge, Satellite Beach, Titusville, West Melbourne and surrounding areas in Brevard.
This listing is courtesy of The Ullian Realty Corporation. Property Listing Data contained within the D Basile Real Estate website is the property of Brevard MLS and is provided for consumers looking to purchase real estate. Any other use is prohibited. We are not responsible for errors and omissions on this web site. All information contained herein should be deemed reliable but not guaranteed, all representations are approximate, and individual verification is recommended.
Quick MLS Search
Choose the Area, City, then Type of the property you're looking for

Share us on your network!