Listing Address:
300 Amberjack Place, Melbourne Beach, FL 32951
Price: $1,050,000
MLS # 1069234
Property Type: Residential
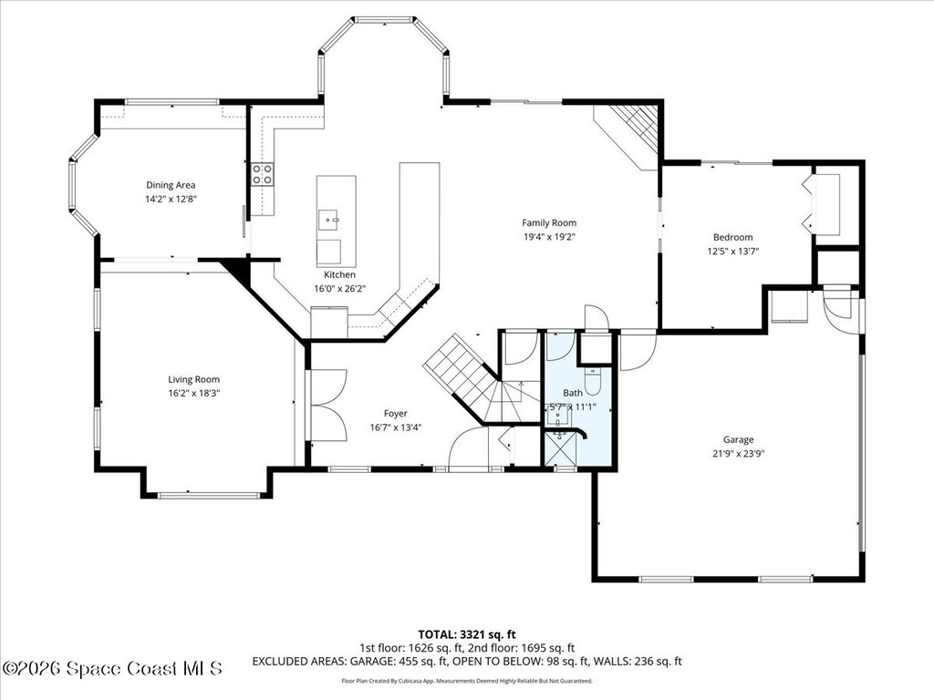
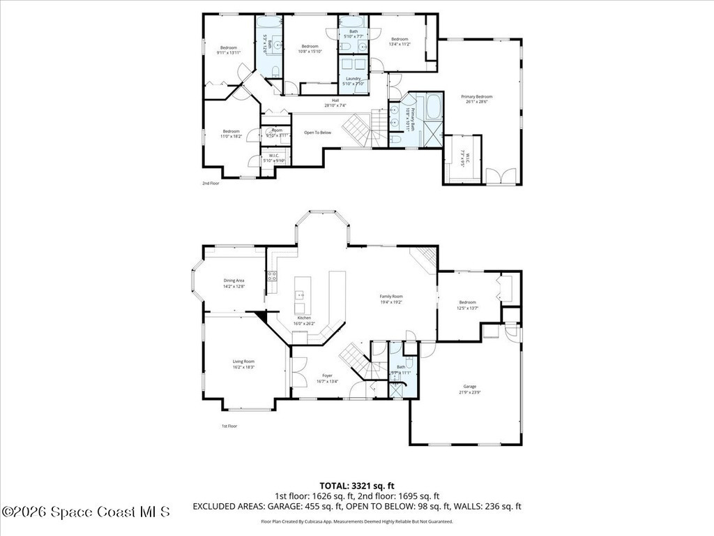
3,507 Total SqFt.
Beds: 6
3,507 Living SqFt.
Baths: 4.00
Year Built: 1989
This property is Active. Please contact us for similar properties.
Property Description:
Tucked into a desirable coastal community this beautifully updated home offers the Florida lifestyle at its best. Conveniently located near the beach local parks and in close proximity to A-rated Gemini Elementary. The quiet neighborhood setting provides a relaxed and inviting atmosphere. The home features tall ceilings and has been freshly painted creating a bright open feel throughout.The remodeled kitchen showcases quartz countertops white appliances and stylish floating shelves ideal for both everyday living and entertaining. Hurricane-rated impact glass and doors provide added peace of mind along with a newer roof installed in 2021.Situated on an oversized corner lot the outdoor space is designed for enjoyment with fresh landscaping a vinyl fenced backyard and a pool with newly resurfaced finish. Enjoy scenic views of the golf course and lake offering a serene backdrop and enhanced privacy. Move-in ready and thoughtfully upgraded this home delivers comfort convenience and coastal
Property Listing Details for 300 Amberjack Place, Melbourne Beach, FL 32951
Exterior Features
Impact Windows , Outdoor Shower
Interior Features
Breakfast Nook , Built-in Features , Ceiling Fan(s) , Eat-in Kitchen , Jack and Jill Bath , Kitchen Island , Open Floorplan , Primary Bathroom -Tub with Separate Shower , Walk-In Closet(s)
Equipment / Appliances
Convection Oven , Dishwasher , Double Oven , Electric Oven , Electric Range , Microwave , Refrigerator
Pool
Pool Description
In Ground
Utilities
Electricity Connected , Sewer Connected , Water Connected
Additional Rooms
None
Waterfront
No
Parking
Garage , Garage Door Opener , On Street
Split Floorplan
HOA
HOA Dues
0.00
Construction
Frame , Stucco
Floor
Carpet , Tile
Exterior Finish
Roof Type
Shingle
Fireplace
0
County
Brevard
Gated Community
Furnishings
Unfurnished
Home Warranty
Tax Year
2025
Tax Amount
1026.49
55+ Community
Subdivision
Listing Status
Active
Property Status
Home Style
Other
Home View
Golf Course , Lake
Street
300 Amberjack Place, Melbourne Beach, 32951
Zip Code
D. Basile Real Estate, LLC lists and sells Real Estate and Luxury homes in Melbourne Beach, Merritt Island, Cocoa Beach, Lansing Island, Tortoise Island, Barefoot Bay, Cape Canaveral, Cocoa, Grant Valkaria, Indialantic, Indian Harbour Beach, Malabar, Melbourne, Palm Bay, Rockledge, Satellite Beach, Titusville, West Melbourne and surrounding areas in Brevard.
This listing is courtesy of One Sotheby's International. Property Listing Data contained within the D Basile Real Estate website is the property of Brevard MLS and is provided for consumers looking to purchase real estate. Any other use is prohibited. We are not responsible for errors and omissions on this web site. All information contained herein should be deemed reliable but not guaranteed, all representations are approximate, and individual verification is recommended.
Quick MLS Search
Choose the Area, City, then Type of the property you're looking for

Share us on your network!