Listing Address:
5400 Sand Lake Drive, Melbourne, FL 32934
Price: $899,000
MLS # 1070128
Property Type: Residential
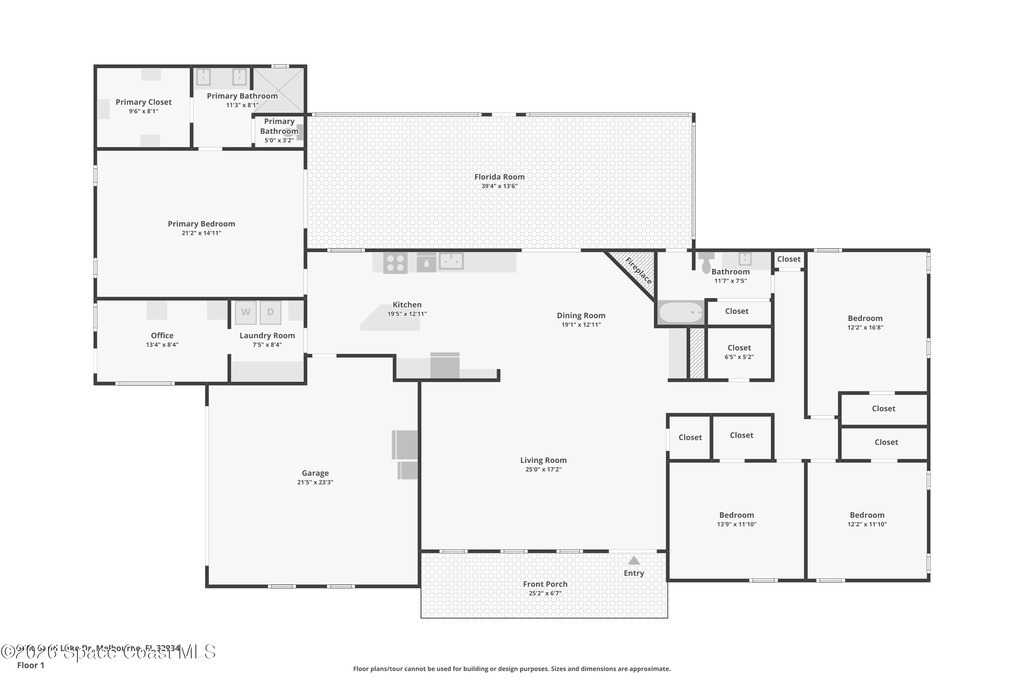
2,762 Total SqFt.
Beds: 4
2,762 Living SqFt.
Baths: 2.00
Year Built: 1982
This property is Active. Please contact us for similar properties.
Property Description:
Direct canal access to the St. Johns River and Lake Washington sets the tone for this unapologetically bold 1.03-acre property--no HOA, no limits, just freedom. A saltwater pool and hot tub anchor the backyard escape, while a wood-burning fireplace, granite countertops, built-in coffee bar, crown molding, and tile throughout elevate the interior. A secret room adds intrigue, and the pole barn, chicken coop, and brand-new shed with electric expand the possibilities. Built for action with a 2025 airboat ramp, 2024 electric gate system, storm shutters, whole-house generator outlet, new appliances with transferable warranty, new garage door opener, fresh landscaping, plus updated pool and sprinkler pumps (2023) and a new hot tub heater (2025)--this is waterfront living with edge, attitude, and room to breathe.
Property Listing Details for 5400 Sand Lake Drive, Melbourne, FL 32934
Exterior Features
Boat Ramp - Private , Other , Storm Shutters
Interior Features
Breakfast Nook , Built-in Features , Ceiling Fan(s) , Eat-in Kitchen , Kitchen Island , Open Floorplan , Pantry , Primary Bathroom - Tub with Shower , Primary Downstairs , Skylight(s) , Split Bedrooms , Walk-In Closet(s)
Equipment / Appliances
Dishwasher , Electric Range , Electric Water Heater , Microwave , Refrigerator
Pool
Pool Description
In Ground , Salt Water
Utilities
Cable Connected , Electricity Connected , Propane , Water Connected
Additional Rooms
None
Waterfront
Yes
Water Type
Parking
Attached , Garage , Gated
Split Floorplan
HOA
HOA Dues
0.00
Construction
Brick , Frame
Floor
Tile
Exterior Finish
Roof Type
Fireplace
0
County
Brevard
Gated Community
Furnishings
Unfurnished
Home Warranty
Tax Year
2025
Tax Amount
7301.24
55+ Community
Subdivision
Listing Status
Active
Property Status
Home Style
Home View
Pool
Street
5400 Sand Lake Drive, Melbourne, 32934
Zip Code
D. Basile Real Estate, LLC lists and sells Real Estate and Luxury homes in Melbourne Beach, Merritt Island, Cocoa Beach, Lansing Island, Tortoise Island, Barefoot Bay, Cape Canaveral, Cocoa, Grant Valkaria, Indialantic, Indian Harbour Beach, Malabar, Melbourne, Palm Bay, Rockledge, Satellite Beach, Titusville, West Melbourne and surrounding areas in Brevard.
This listing is courtesy of Compass Florida , LLC. Property Listing Data contained within the D Basile Real Estate website is the property of Brevard MLS and is provided for consumers looking to purchase real estate. Any other use is prohibited. We are not responsible for errors and omissions on this web site. All information contained herein should be deemed reliable but not guaranteed, all representations are approximate, and individual verification is recommended.
Quick MLS Search
Choose the Area, City, then Type of the property you're looking for

Share us on your network!