Listing Address:
1056 Noreen Boulevard, Rockledge, FL 32955
Price: $325,000
MLS # 1070370
Property Type: Residential
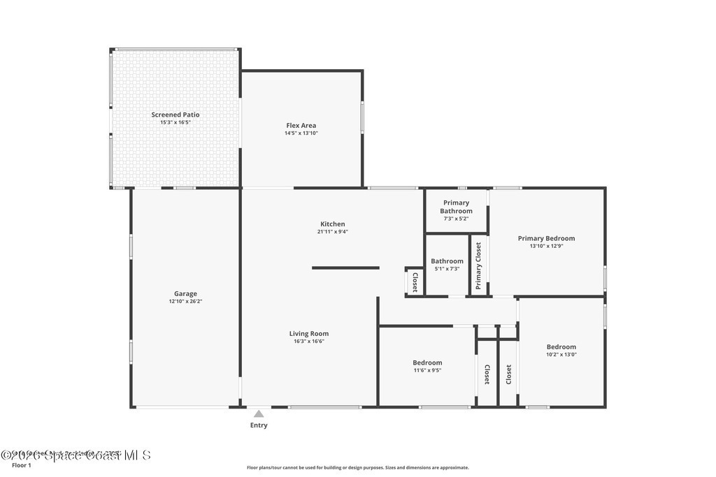
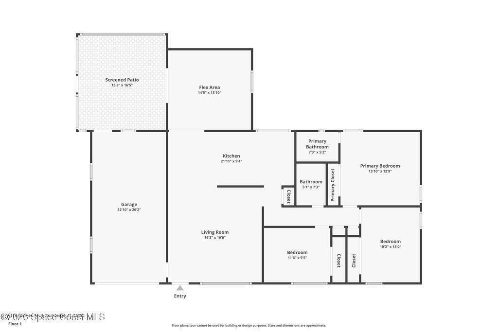
1,412 Total SqFt.
Beds: 3
1,412 Living SqFt.
Baths: 2.00
Year Built: 1960
This property is Active. Please contact us for similar properties.
Property Description:
Corner lot confidence meets smart, stylish living. This 3-bedroom, 2-bath beauty delivers the updates buyers crave and the extras they didn't know they needed. Sleek vinyl flooring sets the tone, while plantation shutters add timeless character. The flex space? Home office, gym, playroom - you decide. Entertain with ease thanks to a dedicated wine cooler and seamless flow to the screened back porch - perfect for breezy Florida evenings. A single-car garage, manual storm shutters, smart doorbell, smart thermostat, and full security system bring peace of mind and modern convenience together under one roof. Located near top-rated schools, shopping, and dining, this home checks the practical boxes and the lifestyle ones too. Clean. Sharp. Move-in ready!
Property Listing Details for 1056 Noreen Boulevard, Rockledge, FL 32955
Exterior Features
Storm Shutters
Interior Features
Ceiling Fan(s) , Primary Bathroom - Shower No Tub , Primary Downstairs , Smart Thermostat
Equipment / Appliances
Dishwasher , Electric Oven , Electric Range , Electric Water Heater , Microwave , Refrigerator , Wine Cooler
Pool
Pool Description
Utilities
Cable Connected , Electricity Connected , Sewer Connected , Water Connected
Additional Rooms
None
Waterfront
No
Parking
Attached , Garage
Split Floorplan
HOA
HOA Dues
0.00
Construction
Frame , Vinyl Siding
Floor
Vinyl
Exterior Finish
Roof Type
Shingle
Fireplace
0
County
Brevard
Gated Community
Furnishings
Unfurnished
Home Warranty
Tax Year
2025
Tax Amount
3339.50
55+ Community
Subdivision
Listing Status
Active
Property Status
Home Style
Home View
Street
1056 Noreen Boulevard, Rockledge, 32955
Zip Code
D. Basile Real Estate, LLC lists and sells Real Estate and Luxury homes in Melbourne Beach, Merritt Island, Cocoa Beach, Lansing Island, Tortoise Island, Barefoot Bay, Cape Canaveral, Cocoa, Grant Valkaria, Indialantic, Indian Harbour Beach, Malabar, Melbourne, Palm Bay, Rockledge, Satellite Beach, Titusville, West Melbourne and surrounding areas in Brevard.
This listing is courtesy of Real Broker , LLC. Property Listing Data contained within the D Basile Real Estate website is the property of Brevard MLS and is provided for consumers looking to purchase real estate. Any other use is prohibited. We are not responsible for errors and omissions on this web site. All information contained herein should be deemed reliable but not guaranteed, all representations are approximate, and individual verification is recommended.
Quick MLS Search
Choose the Area, City, then Type of the property you're looking for

Share us on your network!