Listing Address:
1813 Coco Plum Street, Palm Bay, FL 32905
Price: $140,000
MLS # 1070629
Property Type: Residential
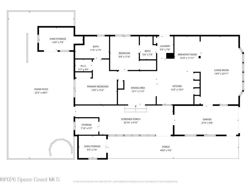
1,302 Total SqFt.
Beds: 2
1,302 Living SqFt.
Baths: 2.00
Year Built: 1978
This property is Active. Please contact us for similar properties.
Property Description:
Rare attached-garage home offering 1,302 living square feet in desirable Palm Bay Colony, and the community membership transfers to the new owner. Enjoy heated pool, clubhouse, activities, and low monthly fees in this established 55+ neighborhood where you own the land. Inside, this bright 2-bedroom, 2-bath residence features expansive living and dining areas with custom built-ins and a wall of front windows that fill the home with natural light. Windows are updated, double pane throughout. The kitchen includes stainless appliances, generous cabinetry, and a central island. The primary suite offers a walk-in closet and tiled shower layout, plus a dedicated interior laundry room. An enclosed Florida room adds valuable bonus space, while the large paver patio backyard enhances outdoor enjoyment. The attached garage and extended driveway provide exceptional parking flexibility - a rare find in the community.
Property Listing Details for 1813 Coco Plum Street, Palm Bay, FL 32905
Exterior Features
Interior Features
Ceiling Fan(s) , Wet Bar
Equipment / Appliances
Dishwasher , Dryer , Electric Oven , Electric Range , Microwave , Refrigerator , Washer
Pool
Pool Description
Utilities
Cable Available , Electricity Connected , Sewer Connected , Water Connected
Additional Rooms
None
Waterfront
No
Parking
Attached , Garage
Split Floorplan
HOA
HOA Dues
0.00
Construction
Frame , Vinyl Siding
Floor
Carpet , Laminate
Exterior Finish
Roof Type
Metal
Fireplace
0
County
Brevard
Gated Community
Furnishings
Unfurnished
Home Warranty
Tax Year
2025
Tax Amount
72.70
55+ Community
Subdivision
Listing Status
Active
Property Status
Home Style
Home View
Street
1813 Coco Plum Street, Palm Bay, 32905
Zip Code
D. Basile Real Estate, LLC lists and sells Real Estate and Luxury homes in Melbourne Beach, Merritt Island, Cocoa Beach, Lansing Island, Tortoise Island, Barefoot Bay, Cape Canaveral, Cocoa, Grant Valkaria, Indialantic, Indian Harbour Beach, Malabar, Melbourne, Palm Bay, Rockledge, Satellite Beach, Titusville, West Melbourne and surrounding areas in Brevard.
This listing is courtesy of Keller Williams Realty Brevard. Property Listing Data contained within the D Basile Real Estate website is the property of Brevard MLS and is provided for consumers looking to purchase real estate. Any other use is prohibited. We are not responsible for errors and omissions on this web site. All information contained herein should be deemed reliable but not guaranteed, all representations are approximate, and individual verification is recommended.
Quick MLS Search
Choose the Area, City, then Type of the property you're looking for

Share us on your network!