Listing Address:
155 Highway A1a Highway, Satellite Beach, FL 32937
Price: $479,000
MLS # 1071481
Property Type: Residential
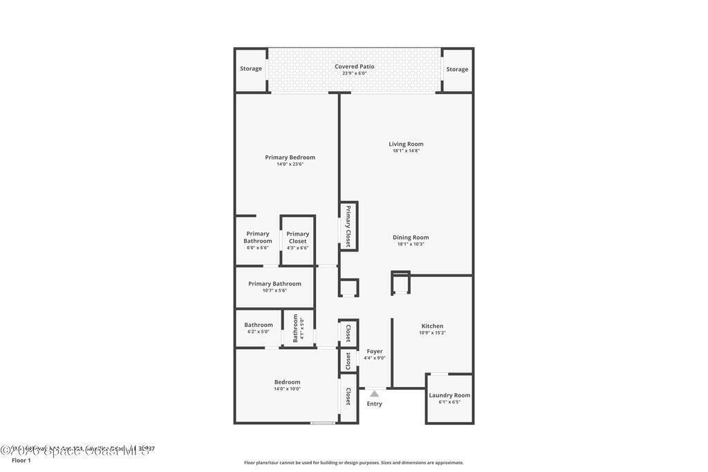
1,462 Total SqFt.
Beds: 2
1,462 Living SqFt.
Baths: 2.00
Year Built: 1980
This property is Active. Please contact us for similar properties.
Property Description:
Experience oceanfront living in Satellite Beach, where breathtaking sunrises, surfing, & sandcastles are part of everyday life. 2 bedroom, 2 bath condo features a spacious living area with triple sliding glass doors showcasing beautiful views of the dunes and Atlantic Ocean. Enjoy the ease of first-floor living, no elevators or stairs needed! Just steps from the heated community pool & private beach access. The covered patio overlooks a peaceful green space. The well-maintained interior offers tile floors, big kitchen, nice appliances, and a wide living area with room for friends to gather. Ideally located just south of Pineda Cswy. for quick access to I-95, 1 hour to Orlando Intl. Airport and 20 mins to Melbourne Airport. Shopping, dining, and coffee cafes are nearby. Affordable HOA fee $563/month covers exterior maintenance, and water. Structural report & building updates completed. NO CURRENT ASSESSMENTS! Includes washer & dryer, storm shutters. Partially furnished. Move right in!
Property Listing Details for 155 Highway A1a Highway, Satellite Beach, FL 32937
Exterior Features
Storm Shutters
Interior Features
Breakfast Bar , Ceiling Fan(s) , Eat-in Kitchen , Elevator , Primary Bathroom - Shower No Tub , Primary Downstairs , Split Bedrooms , Walk-In Closet(s)
Equipment / Appliances
Dishwasher , Dryer , Electric Range , Electric Water Heater , Ice Maker , Microwave , Plumbed For Ice Maker , Refrigerator , Washer
Pool
Pool Description
Utilities
Cable Connected , Electricity Connected , Sewer Connected , Water Connected
Additional Rooms
None
Waterfront
Yes
Water Type
Parking
Guest , Parking Lot , Unassigned
Split Floorplan
HOA
HOA Dues
0.00
Construction
Block , Stucco
Floor
Carpet , Tile
Exterior Finish
Roof Type
Membrane
Fireplace
0
County
Brevard
Gated Community
Furnishings
Partially
Home Warranty
Tax Year
2025
Tax Amount
5182.92
55+ Community
Subdivision
Listing Status
Active
Property Status
Home Style
Home View
Beach , Ocean
Street
155 Highway A1a Highway, Satellite Beach, 32937
Zip Code
D. Basile Real Estate, LLC lists and sells Real Estate and Luxury homes in Melbourne Beach, Merritt Island, Cocoa Beach, Lansing Island, Tortoise Island, Barefoot Bay, Cape Canaveral, Cocoa, Grant Valkaria, Indialantic, Indian Harbour Beach, Malabar, Melbourne, Palm Bay, Rockledge, Satellite Beach, Titusville, West Melbourne and surrounding areas in Brevard.
This listing is courtesy of Blue Marlin Real Estate. Property Listing Data contained within the D Basile Real Estate website is the property of Brevard MLS and is provided for consumers looking to purchase real estate. Any other use is prohibited. We are not responsible for errors and omissions on this web site. All information contained herein should be deemed reliable but not guaranteed, all representations are approximate, and individual verification is recommended.
Quick MLS Search
Choose the Area, City, then Type of the property you're looking for

Share us on your network!