Listing Address:
922 Bougainvillea Circle, Barefoot Bay, FL 32976
Price: $141,000
MLS # 1071547
Property Type: Residential
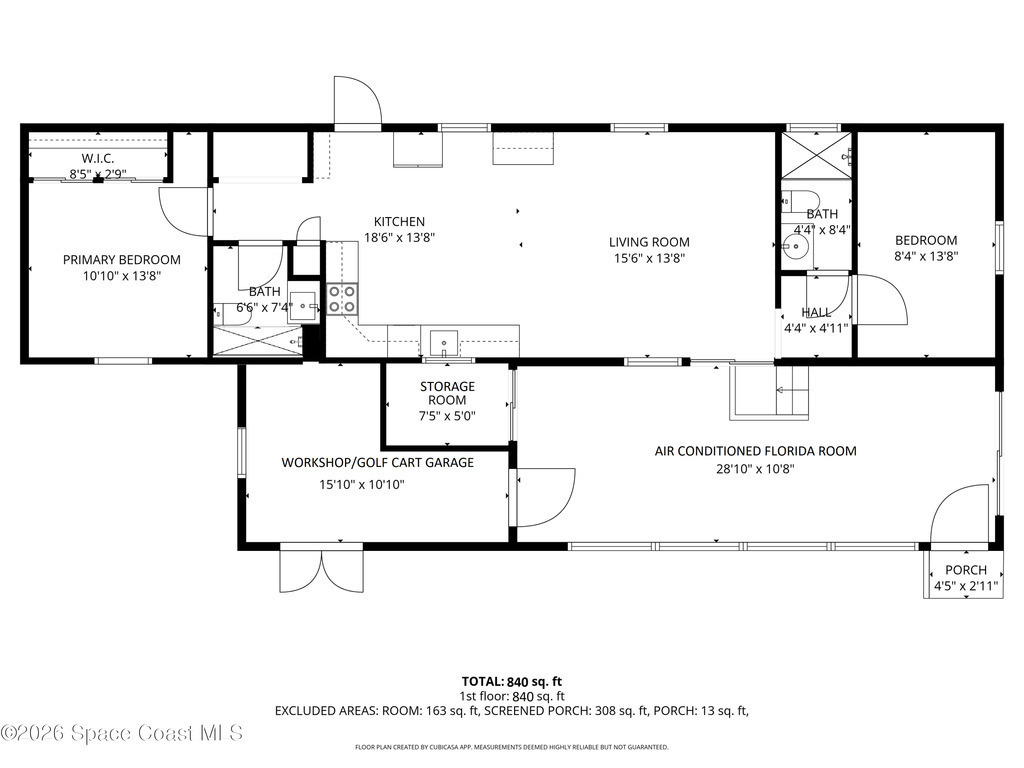
840 Total SqFt.
Beds: 2
840 Living SqFt.
Baths: 2.00
Year Built: 1983
This property is Active. Please contact us for similar properties.
Property Description:
Move-in ready corner lot opportunity in Barefoot Bay! This well-maintained home offers 840 sq ft of living area plus over 500 sq ft of enclosed Florida room/flex space with windows, screens, and its own AC, creating comfortable additional living space beyond the official square footage. The enclosed area includes workshop and storage areas ideal for hobbies or projects. Inside you'll find tile flooring, vaulted ceilings, updated kitchen with white cabinetry, and a bright open living and dining layout. Both bathrooms have been updated, and the home also features a metal roof and spacious concrete driveway. Situated on a desirable corner lot with mature tropical landscaping. Located within the Barefoot Bay Recreation District offering pools, golf, tennis, pickleball, clubhouse activities, fishing pier, and beach access nearby. Exceptional value in Barefoot Bay and priced to sell. Ideal for seasonal living, full-time residence, or investment.
Property Listing Details for 922 Bougainvillea Circle, Barefoot Bay, FL 32976
Exterior Features
Interior Features
Breakfast Bar , Ceiling Fan(s) , Open Floorplan , Pantry , Primary Bathroom - Shower No Tub , Primary Downstairs , Split Bedrooms , Vaulted Ceiling(s)
Equipment / Appliances
Dishwasher , Electric Range , Electric Water Heater , Microwave , Refrigerator
Pool
Pool Description
Utilities
Cable Available , Electricity Connected , Sewer Connected , Water Connected
Additional Rooms
None
Waterfront
No
Parking
Off Street , Other
Split Floorplan
HOA
HOA Dues
0.00
Construction
Aluminum Siding , Frame , Other , Vinyl Siding
Floor
Laminate , Tile , Vinyl
Exterior Finish
Roof Type
Membrane , Metal
Fireplace
0
County
Brevard
Gated Community
Furnishings
Unfurnished
Home Warranty
Tax Year
2025
Tax Amount
1970.82
55+ Community
Subdivision
Listing Status
Active
Property Status
Home Style
Other
Home View
City , Other , Trees/Woods
Street
922 Bougainvillea Circle, Barefoot Bay, 32976
Zip Code
D. Basile Real Estate, LLC lists and sells Real Estate and Luxury homes in Melbourne Beach, Merritt Island, Cocoa Beach, Lansing Island, Tortoise Island, Barefoot Bay, Cape Canaveral, Cocoa, Grant Valkaria, Indialantic, Indian Harbour Beach, Malabar, Melbourne, Palm Bay, Rockledge, Satellite Beach, Titusville, West Melbourne and surrounding areas in Brevard.
This listing is courtesy of Waterman Real Estate , Inc.. Property Listing Data contained within the D Basile Real Estate website is the property of Brevard MLS and is provided for consumers looking to purchase real estate. Any other use is prohibited. We are not responsible for errors and omissions on this web site. All information contained herein should be deemed reliable but not guaranteed, all representations are approximate, and individual verification is recommended.
Quick MLS Search
Choose the Area, City, then Type of the property you're looking for

Share us on your network!