Listing Address:
1390 Talon Way, Melbourne, FL 32934
Price: $699,982
MLS # 1072982
Property Type: Residential
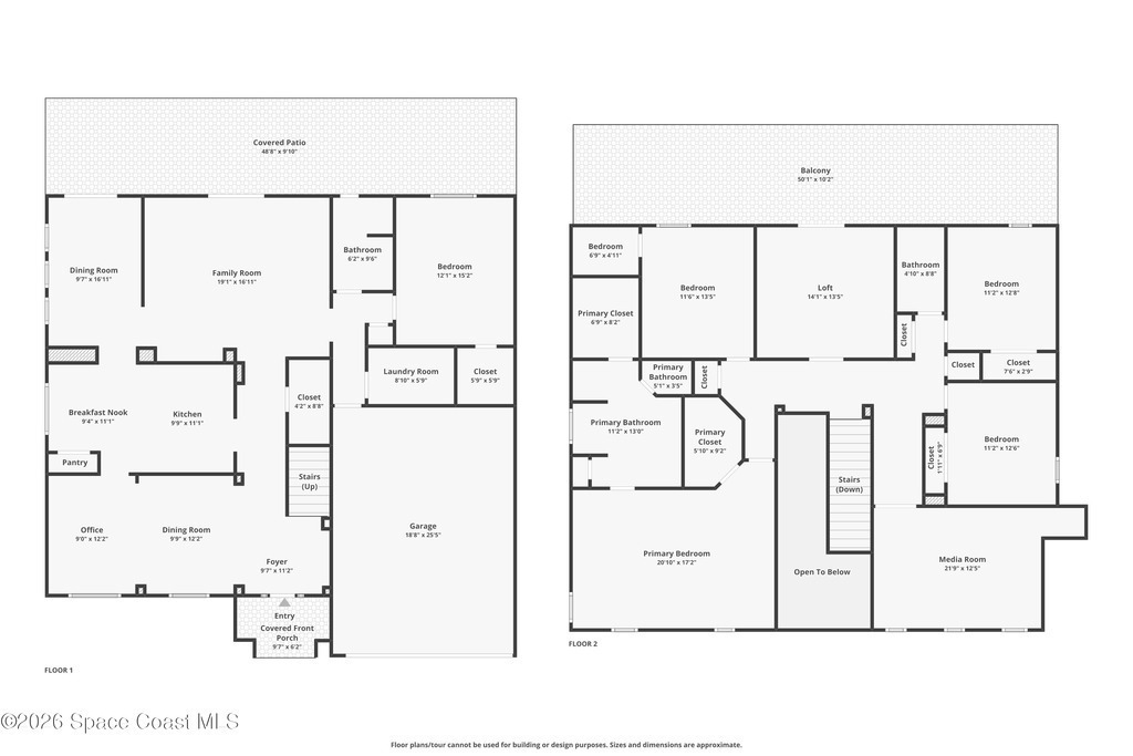
3,686 Total SqFt.
Beds: 5
3,686 Living SqFt.
Baths: 3.00
Year Built: 2006
This property is Active. Please contact us for similar properties.
Property Description:
Located in the gated community of Eagle Harbor, this expansive 5-bedroom pool home offers a rare blend of versatility, comfort, and true Florida lifestyle living. With over 3,600 square feet, the thoughtfully designed floor plan adapts effortlessly to the way you live--featuring formal living and dining areas, a dedicated office or flex space, and an open-concept kitchen and family room that seamlessly connects to a sun-filled Florida room currently enjoyed as the main dining space.Upstairs, the home truly shines with a spacious bonus room featuring sliders that open to an impressive 500 sq ft deck--perfect for taking in elevated views of the backyard, enjoying sunset skies, or even catching a rocket launch. A dedicated movie room with high-resolution projector, surround sound, and oversized reclining seating creates the ultimate at-home theater experience.Step outside and you'll find your own private retreat. The fenced backyard showcases a sparkling pool and spa with a built-in
Property Listing Details for 1390 Talon Way, Melbourne, FL 32934
Exterior Features
Balcony , Fire Pit , Outdoor Kitchen
Interior Features
Breakfast Bar , Breakfast Nook , Built-in Features , Ceiling Fan(s) , Eat-in Kitchen , Guest Suite , His and Hers Closets , Open Floorplan , Pantry , Primary Bathroom -Tub with Separate Shower , Smart Thermostat , Split Bedrooms , Vaulted Ceiling(s) , Walk-In Closet(s) , Wet Bar
Equipment / Appliances
Dishwasher , Disposal , Electric Oven , Electric Range , Microwave , Refrigerator
Pool
Pool Description
Heated , In Ground
Utilities
Cable Connected , Electricity Connected , Sewer Connected , Water Connected
Additional Rooms
Bedroom 2 , Bedroom 3 , Bedroom 4 , Bedroom 5 , Dining Room , Family Room , Florida Room , Kitchen , Laundry , Loft , Media Room , Office , Primary Bedroom
Waterfront
No
Parking
Attached , Garage , Garage Door Opener
Split Floorplan
HOA
HOA Dues
0.00
Construction
Concrete , Frame , Stone Veneer , Stucco
Floor
Carpet , Tile , Wood
Exterior Finish
Roof Type
Shingle
Fireplace
0
County
Brevard
Gated Community
Furnishings
Unfurnished
Home Warranty
Tax Year
2025
Tax Amount
116.70
55+ Community
Subdivision
Listing Status
Active
Property Status
Home Style
Traditional
Home View
Trees/Woods
Street
1390 Talon Way, Melbourne, 32934
Zip Code
D. Basile Real Estate, LLC lists and sells Real Estate and Luxury homes in Melbourne Beach, Merritt Island, Cocoa Beach, Lansing Island, Tortoise Island, Barefoot Bay, Cape Canaveral, Cocoa, Grant Valkaria, Indialantic, Indian Harbour Beach, Malabar, Melbourne, Palm Bay, Rockledge, Satellite Beach, Titusville, West Melbourne and surrounding areas in Brevard.
This listing is courtesy of Engel&Voelkers Melb Beachside. Property Listing Data contained within the D Basile Real Estate website is the property of Brevard MLS and is provided for consumers looking to purchase real estate. Any other use is prohibited. We are not responsible for errors and omissions on this web site. All information contained herein should be deemed reliable but not guaranteed, all representations are approximate, and individual verification is recommended.
Quick MLS Search
Choose the Area, City, then Type of the property you're looking for

Share us on your network!